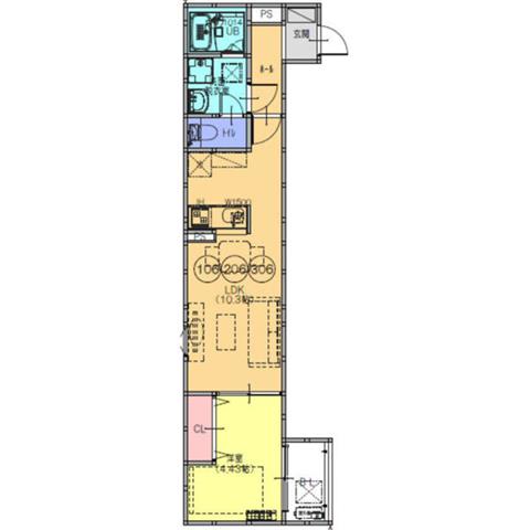
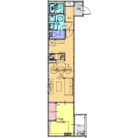
空室一覧
| 所在地 | 松原市高見の里2丁目 | 建築年月 | 2026年7月 |
|---|---|---|---|
| 最寄駅 |
近鉄南大阪線 高見ノ里駅(徒歩4分)
近鉄南大阪線 布忍駅(徒歩10分) 近鉄南大阪線 河内松原駅(徒歩17分) 近鉄南大阪線 河内天美駅(徒歩23分) |
||
| 総階数 | 3階建て | 総戸数 | 18戸 | 構造 | 木造 |
|---|---|---|---|---|---|
| 周辺施設 |
・デイリーカナートイズミヤ (696m)・じゃんぼ食鮮館松原 (764m)・カナートモール松原 (696m)・セブンイレブン松原高見の里2丁目店 (244m)・マルシゲ高見の里店 (371m)
※小・中学校は近くの学校を表示しています。学校区が異なる場合がありますのでご了承ください |
||||
店舗情報
お電話での物件問い合わせは無料通話で!(直営店のみ)
- FC北花田店
- 御堂筋線 北花田駅(徒歩1分)
- Tel: 072-246-3232
店舗詳細情報
チェックしたお部屋にお問い合わせ
Sorry,Japanese & English only. 日本語・英語のみ対応しております。ご了承ください。
- ※取扱形態はすべて仲介です。 / お部屋の情報は随時更新です / 各種情報と現況に差異がある場合は、現況優先となります。 / 保証会社の審査があります。 / 契約一時金は、契約時に借主より貸主に支払われ返還されない金銭です。

まとめてお問合せ


