大阪府松原市高見の里2丁目 1LDK 35.47m2 物件詳細情報
| 沿線・駅 所在地 |
賃料 共益費(管理費) |
敷金 礼金 |
間取り 専有面積 |
種別 建築年月日 |
|
|---|---|---|---|---|---|
|
近鉄南大阪線 高見ノ里駅(徒歩4分)
大阪府松原市高見の里2丁目 |
70,800円 5,000円 |
- 1.0ヶ月 |
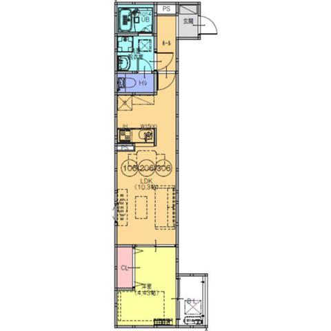
1LDK 35.47m2 |
アパート 2026年7月 |
|
この物件のお問い合わせ番号 5107-2710039206-0017
外観・間取り図
情報登録日:2026/04/26 情報更新日:2026/05/13 次回更新予定日:2026/05/20
設備
| 部屋設備 | TV付モニターホン / インターホン / 下駄箱 / IHヒーター / エアコン / フローリング / バルコニー / ウォームレット / シャワー / 洗髪洗面化粧台 / 室内洗濯機置場 / バストイレ別 / コンロ(コンロ(2口)) / 角部屋 / 2人入居 / クロゼット / 洗面所独立 / カウンターキッチン / システムキッチン |
|---|---|
| 建物設備 | オートロック / 駐輪場 / 宅配ボックス / CATV / 巡回管理 / 敷地内ゴミ置き場 |
物件詳細
| 交通機関 | ・近鉄南大阪線 高見ノ里駅(徒歩4分) ・近鉄南大阪線 布忍駅(徒歩10分) ・近鉄南大阪線 河内松原駅(徒歩17分)・近鉄南大阪線 河内天美駅(徒歩23分) | ||||
|---|---|---|---|---|---|
| 構造 | 木造 | 方位 | 東 | 階数/総階数 | 2階/3階建て |
| 総戸数 | 18戸 | 駐車場 | - | 入居日 | 2026年8月上旬 |
| 環境 | デイリーカナートイズミヤ (696m) / じゃんぼ食鮮館松原 (764m) / カナートモール松原 (696m) / セブンイレブン松原高見の里2丁目店 (244m) / マルシゲ高見の里店 (371m) | ||||
| 内装代 | - | 償却 | - | 保険 | 損保要 |
| 更新料 | - | 水道料金等預かり金 | - | 特記事項 | - |
| 飲用水 | 公営 | ガス | 都市 | 排水 | 公共下水 |
| 給湯方式 | - | ||||
この物件のお問い合わせ番号 5107-2710039206-0017
類似物件一覧
-
7.8万円
-
-
-
5.4万円
-
55,000円
1LDK
大阪府松原市南新町1丁目 -
7.0万円
-
-
1LDK
大阪府松原市天美我堂1丁目 -
5.6万円
1.0ヶ月
-
1DK
大阪府松原市新堂1丁目 -
6.6万円
-
100,000円
1DK
大阪府松原市西大塚1丁目 -
8.9万円
-
133,500円
1LDK
大阪府松原市西大塚1丁目 -
8.3万円
-
83,000円
1LDK
大阪府松原市阿保4丁目 -
7.1万円
-
1.0ヶ月
1LDK
大阪府松原市高見の里4丁目 -
6.9万円
-
1.0ヶ月
1LDK
大阪府松原市高見の里4丁目 -
7.0万円
-
75,000円
1LDK
大阪府松原市岡6丁目 -
6.5万円
-
70,000円
1LDK
大阪府松原市天美北2丁目 -
6.6万円
-
100,000円
1DK
大阪府松原市西大塚1丁目
店舗情報
お電話での物件問い合わせは無料通話で!(直営店のみ)
5107-2710039206-0017
- FC北花田店
- 御堂筋線 北花田駅(徒歩1分)
- Tel: 072-246-3232
- 店舗詳細情報
このお部屋にお問い合わせ
あわせて店舗への来店を希望のお客様は、上の希望店舗の来店予約フォームをご利用ください(直営店舗のみ)
Sorry,Japanese & English only. 日本語・英語のみ対応しております。ご了承ください。
- ※取扱形態は仲介です。 / お部屋の情報は随時更新です / 各種情報と現況に差異がある場合は、現況優先となります。 / 保証会社の審査があります。 / 契約一時金は、契約時に借主より貸主に支払われ返還されない金銭です。

この物件のかんたんお問合せフォーム
お電話でお問合せ


大阪府松原市岡5丁目