エスリード弁天町桜通レジデンス 物件詳細情報
| 沿線・駅 所在地 |
賃料 共益費(管理費) |
敷金 礼金 |
間取り 専有面積 |
種別 建築年月日 |
|
|---|---|---|---|---|---|
|
大阪メトロ中央線 弁天町駅(徒歩9分)
大阪府大阪市港区弁天3丁目 |
63,700円 8,000円 |
- 71,700円 |
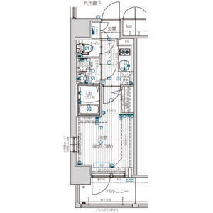
1K 21.09m2 |
分譲賃貸 2024年10月 |
|
この物件のお問い合わせ番号 0001-F000113707-0003
ペット飼育可能。小型犬のみ(2匹迄、1匹につき月額100円) 1年未満の解約の場合は短期違約特約有り 違約金は賃料(共益費含む)の2ヶ月分 契約更新料/2年毎 賃料1ヶ月分要(共益費除く) 退去時ハウスクリーニング代 退去時 35200円(税込)

- 【公園】市岡公園

- 【ディスカウントショップ】MEGAドン・キホーテ弁天町店

- 【コンビニエンスストア】セブンイレブン 大阪夕凪1丁目店

- 【ドラッグストア】キリン堂 港区磯路店

- 【郵便局】大阪夕凪橋郵便局

- 【市役所・区役所】大阪市港区役所
設備
| 部屋設備 | TV付モニターホン / 下駄箱 / ガスコンロ(コンロ(2口)) / エアコン / フローリング / バルコニー / シャワー / 浴室乾燥機 / 洗髪洗面化粧台 / 室内洗濯機置場 / バストイレ別 / シャワー付トイレ / クロゼット / 洗面所独立 / システムキッチン |
|---|---|
| 建物設備 | エレベータ / オートロック / 駐輪場 / 宅配ボックス / ペット可 / ネット利用料無料 / ネット環境(光ファイバ対応) / BSアンテナ / CSアンテナ / バイク置き場 / 防犯カメラ |
物件詳細
| 交通機関 | ・大阪メトロ中央線 弁天町駅(徒歩9分) ・JR大阪環状線 弁天町駅(徒歩14分) | ||||
|---|---|---|---|---|---|
| 構造 | RC造 | 方位 | 北東 | 階数/総階数 | 2階/10階建て |
| 総戸数 | 105戸 | 駐車場 | - | 入居日 | 相談 |
| 環境 | 【公園】市岡公園 (532m) / 【ディスカウントショップ】MEGAドン・キホーテ弁天町店 (168m) / 【コンビニエンスストア】セブンイレブン 大阪夕凪1丁目店 (461m) / 【ドラッグストア】キリン堂 港区磯路店 (439m) / 【郵便局】大阪夕凪橋郵便局 (667m) / 【市役所・区役所】大阪市港区役所 (780m) / コンビニ (461m) | ||||
| 内装代 | - | 償却 | 0円 | 保険 | 損保要 |
| 更新料 | 63,700円 | 水道料金等預かり金 | - | 特記事項 | - |
| 飲用水 | 公営 | ガス | 都市 | 排水 | 公共下水 |
| 給湯方式 | - | ||||
その他の費用
| 一時 | エスリードクラブ入会費 契約時:19,800円/契約事務手数料:22,000円 |
|---|---|
| 他 | 初回保証料:月額総賃料の50% 月次保証料:月額総賃料の1.5% |
この物件のお問い合わせ番号 0001-F000113707-0003
類似物件一覧
-
6.8万円
-
1.0ヶ月
-
6.8万円
-
-
1K
大阪府大阪市港区波除2丁目 -
6.6万円
-
-
1K
大阪府大阪市港区夕凪1丁目 -
6.4万円
-
72,200円
1K
大阪府大阪市港区弁天3丁目 -
6.8万円
-
1.0ヶ月
1K
大阪府大阪市港区築港3丁目 -
7.4万円
-
-
1K
大阪府大阪市港区波除2丁目 -
7.0万円
-
1.0ヶ月
1K
大阪府大阪市港区磯路2丁目 -
6.8万円
-
-
1K
大阪府大阪市港区波除3丁目 -
6.3万円
-
67,000円
1K
大阪府大阪市港区弁天3丁目 -
6.7万円
-
-
1K
大阪府大阪市港区弁天5丁目 -
6.4万円
-
72,200円
1K
大阪府大阪市港区弁天3丁目 -
6.6万円
-
-
1K
大阪府大阪市港区夕凪2丁目
店舗情報
お電話での物件問い合わせは無料通話で!(直営店のみ)
0001-F000113707-0003
- FC西中島南方店
- 御堂筋線 西中島南方駅(徒歩1分)
- Tel: 06-6390-3211
- 店舗詳細情報
このお部屋にお問い合わせ
あわせて店舗への来店を希望のお客様は、上の希望店舗の来店予約フォームをご利用ください(直営店舗のみ)
Sorry,Japanese & English only. 日本語・英語のみ対応しております。ご了承ください。
- ※取扱形態は媒介(先物)です。 / お部屋の情報は随時更新です / 各種情報と現況に差異がある場合は、現況優先となります。 / 保証会社の審査があります。 / 契約一時金は、契約時に借主より貸主に支払われ返還されない金銭です。

この物件のかんたんお問合せフォーム
お電話でお問合せ
外観・間取り図

























大阪府大阪市港区築港3丁目