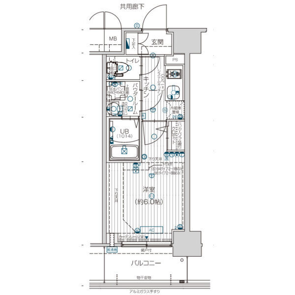
エスリード弁天町桜通レジデンス 空室一覧
| 所在地 | 大阪市港区弁天3丁目 | 建築年月 | 2024年9月 |
|---|---|---|---|
| 最寄駅 |
大阪メトロ中央線 弁天町駅(徒歩9分)
JR大阪環状線 弁天町駅(徒歩14分) |
||
| 総階数 | 10階建て | 総戸数 | 105戸 | 構造 | RC造 |
|---|---|---|---|---|---|
| 周辺施設 |
・【公園】市岡公園 (532m)・【ディスカウントショップ】MEGAドン・キホーテ弁天町店 (168m)・【コンビニエンスストア】セブンイレブン 大阪夕凪1丁目店 (461m)・【ドラッグストア】キリン堂 港区磯路店 (439m)・【郵便局】大阪夕凪橋郵便局 (667m)・【市役所・区役所】大阪市港区役所 (780m)・コンビニ (461m)
※小・中学校は近くの学校を表示しています。学校区が異なる場合がありますのでご了承ください |
||||
店舗情報
お電話での物件問い合わせは無料通話で!(直営店のみ)
- FC西中島南方店
- 御堂筋線 西中島南方駅(徒歩1分)
- Tel: 06-6390-3211
店舗詳細情報
チェックしたお部屋にお問い合わせ
Sorry,Japanese & English only. 日本語・英語のみ対応しております。ご了承ください。
- ※取扱形態はすべて仲介です。 / お部屋の情報は随時更新です / 各種情報と現況に差異がある場合は、現況優先となります。 / 保証会社の審査があります。 / 契約一時金は、契約時に借主より貸主に支払われ返還されない金銭です。

まとめてお問合せ




























































































































































































