ジュネーゼグラン上本町 物件詳細情報
| 沿線・駅 所在地 |
賃料 共益費(管理費) |
敷金 礼金 |
間取り 専有面積 |
種別 建築年月日 |
|
|---|---|---|---|---|---|
|
大阪メトロ谷町線 谷町六丁目駅(徒歩7分)
大阪府大阪市中央区東平1丁目 |
58,000円 9,000円 |
- 58,000円 |
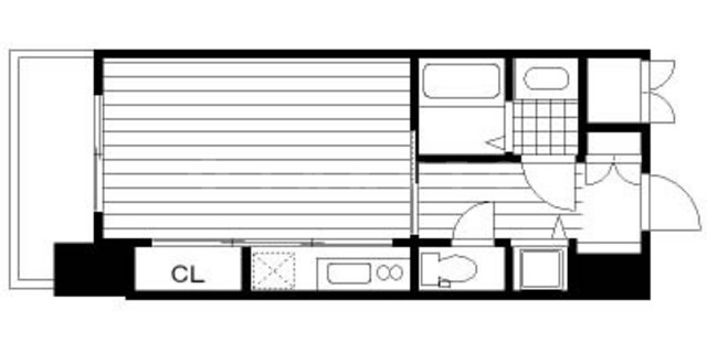
1K 25.16m2 |
マンション 2006年2月 |
|
この物件のお問い合わせ番号 0001-F000109166-0003

- 【郵便局】大阪谷町郵便局

- 【スーパー】ライフクリーナー阪急オアシス上本町店

- 【コンビニエンスストア】セブンイレブン 大阪谷町6丁目店

- 【コンビニエンスストア】ファミリーマート 谷町七丁目店

- 【警察】南警察署

- 【ドラッグストア】スギドラッグ 瓦屋町店

- 【コンビニエンスストア】セブンイレブン 大阪谷町9丁目店

- 【デパート】近鉄百貨店 上本町店
設備
| 部屋設備 | 下駄箱 / エアコン / フローリング / バルコニー / シャワー / 室内洗濯機置場 / バストイレ別 / 保証人不要 / クロゼット / システムキッチン |
|---|---|
| 建物設備 | エレベータ / オートロック / 宅配ボックス / 防犯カメラ |
物件詳細
| 交通機関 | ・大阪メトロ谷町線 谷町六丁目駅(徒歩7分) ・大阪メトロ谷町線 谷町九丁目駅(徒歩8分) | ||||
|---|---|---|---|---|---|
| 構造 | RC造 | 方位 | 階数/総階数 | 6階/9階建て | |
| 総戸数 | 32戸 | 駐車場 | - | 入居日 | 即入居可 |
| 環境 | 【郵便局】大阪谷町郵便局 (316m) / 【スーパー】ライフクリーナー阪急オアシス上本町店 (190m) / 【コンビニエンスストア】セブンイレブン 大阪谷町6丁目店 (617m) / 【コンビニエンスストア】ファミリーマート 谷町七丁目店 (408m) / 【警察】南警察署 (1,422m) / 【ドラッグストア】スギドラッグ 瓦屋町店 (825m) / 【コンビニエンスストア】セブンイレブン 大阪谷町9丁目店 (415m) / 【デパート】近鉄百貨店 上本町店 (713m) / コンビニ (617m) / スーパー (190m) | ||||
| 内装代 | - | 償却 | 0円 | 保険 | 損保要 |
| 更新料 | 72,500円 | 水道料金等預かり金 | - | 特記事項 | - |
| 飲用水 | 公営 | ガス | - | 排水 | 公共下水 |
| 給湯方式 | - | ||||
その他の費用
| 他 | 初回保証料:20265円 |
|---|
この物件のお問い合わせ番号 0001-F000109166-0003
類似物件一覧
-
7.3万円
-
100,000円
-
6.1万円
-
-
1K
大阪府大阪市中央区南船場1丁目 -
7.5万円
-
-
1K
大阪府大阪市中央区松屋町 -
5.7万円
-
1.0ヶ月
1K
大阪府大阪市中央区内淡路町3丁目 -
7.1万円
-
1.0ヶ月
1K
大阪府大阪市中央区松屋町 -
7.1万円
-
1.0ヶ月
1K
大阪府大阪市中央区東高麗橋 -
6.5万円
-
1.0ヶ月
1K
大阪府大阪市中央区森ノ宮中央2丁目 -
7.4万円
-
1.0ヶ月
1K
大阪府大阪市中央区高麗橋1丁目 -
7.4万円
-
74,000円
1K
大阪府大阪市中央区平野町1丁目 -
7.5万円
74,500円
-
1K
大阪府大阪市中央区南船場2丁目 -
6.1万円
61,000円
1.0ヶ月
1K
大阪府大阪市中央区博労町2丁目 -
7.4万円
-
-
1K
大阪府大阪市中央区安堂寺町2丁目
店舗情報
お電話での物件問い合わせは無料通話で!(直営店のみ)
0001-F000109166-0003
- FC本町店
- 御堂筋線 本町駅(徒歩1分)
- Tel: 06-6253-4455
- 店舗詳細情報
このお部屋にお問い合わせ
あわせて店舗への来店を希望のお客様は、上の希望店舗の来店予約フォームをご利用ください(直営店舗のみ)
Sorry,Japanese & English only. 日本語・英語のみ対応しております。ご了承ください。
- ※取扱形態は媒介(先物)です。 / お部屋の情報は随時更新です / 各種情報と現況に差異がある場合は、現況優先となります。 / 保証会社の審査があります。 / 契約一時金は、契約時に借主より貸主に支払われ返還されない金銭です。

この物件のかんたんお問合せフォーム
お電話でお問合せ
外観・間取り図




大阪府大阪市中央区東心斎橋2丁目