ジオエント梅田北リバーフロント 物件詳細情報
| 沿線・駅 所在地 |
賃料 共益費(管理費) |
敷金 礼金 |
間取り 専有面積 |
種別 建築年月日 |
|
|---|---|---|---|---|---|
|
阪急電鉄神戸線 中津駅(徒歩9分)
大阪府大阪市北区中津7丁目 |
125,000円 10,000円 |
- - |
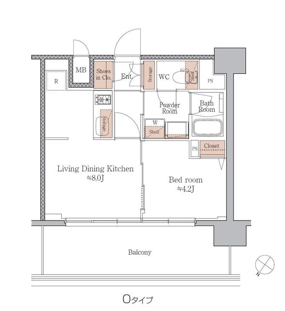
1DK 31.19m2 |
マンション 2026年3月 |
|
この物件のお問い合わせ番号 0001-F000120914-0047
コミュニティラウンジ ワークラウンジ フィットネスジム 会議室 コワーキングブース リバーフロントテラス等共用施設充実 月額(緊急サポート24手数料 990円)

- 【スーパー】ライフ 大淀中店
設備
| 部屋設備 | TV付モニターホン / ガスコンロ(コンロ(2口)) / エアコン / フローリング / バルコニー / シャワー / 浴室乾燥機 / 室内洗濯機置場 / バストイレ別 / シャワー付トイレ / クロゼット / 洗面所独立 / システムキッチン |
|---|---|
| 建物設備 | エレベータ / オートロック / 駐輪場 / 宅配ボックス / バイク置き場 / ネット利用料無料 / 防犯カメラ |
物件詳細
| 交通機関 | ・阪急電鉄神戸線 中津駅(徒歩9分) ・大阪メトロ御堂筋線 中津駅(徒歩15分) | ||||
|---|---|---|---|---|---|
| 構造 | RC造 | 方位 | 北西 | 階数/総階数 | 12階/14階建て |
| 総戸数 | 130戸 | 駐車場 | 33,000円 | 入居日 | 即入居可 |
| 環境 | 【スーパー】ライフ 大淀中店 (460m) / コンビニ (573m) / スーパー (460m) | ||||
| 内装代 | - | 償却 | 0円 | 保険 | 損保要 |
| 更新料 | - | 水道料金等預かり金 | - | 特記事項 | - |
| 飲用水 | 公営 | ガス | 都市 | 排水 | 公共下水 |
| 給湯方式 | - | ||||
その他の費用
| 他 | 初回保証委託料:賃料等総額の40%、月額利用料1,790円(継続保証委託料+火災保険料) |
|---|
この物件のお問い合わせ番号 0001-F000120914-0047
類似物件一覧
-
8.8万円
-
1.0ヶ月
-
13.8万円
-
-
1LDK
大阪府大阪市北区同心2丁目 -
10.8万円
-
1.0ヶ月
1DK
大阪府大阪市北区天満3丁目 -
15.9万円
-
-
1LDK
大阪府大阪市北区大淀中5丁目 -
11.3万円
-
-
1LDK
大阪府大阪市北区天満1丁目 -
12.0万円
-
-
1LDK
大阪府大阪市北区兎我野町 -
9.5万円
-
100,000円
1K
大阪府大阪市北区同心2丁目 -
11.2万円
40,000円
100,000円
1LDK
大阪府大阪市北区豊崎2丁目 -
9.0万円
-
1.0ヶ月
1DK
大阪府大阪市北区天神橋1丁目 -
11.0万円
-
2.0ヶ月
1LDK
大阪府大阪市北区中崎西1丁目 -
9.5万円
-
-
1K
大阪府大阪市北区兎我野町 -
9.9万円
-
99,000円
1K
大阪府大阪市北区大淀南1丁目
店舗情報
お電話での物件問い合わせは無料通話で!(直営店のみ)
0001-F000120914-0047
- 三重法人部
- 059-356-8041
- 三重県四日市市鵜の森1丁目1-19太平洋鵜の森ビル5階
このお部屋にお問い合わせ
あわせて店舗への来店を希望のお客様は、上の希望店舗の来店予約フォームをご利用ください(直営店舗のみ)
Sorry,Japanese & English only. 日本語・英語のみ対応しております。ご了承ください。
- ※取扱形態は媒介(先物)です。 / お部屋の情報は随時更新です / 各種情報と現況に差異がある場合は、現況優先となります。 / 保証会社の審査があります。 / 契約一時金は、契約時に借主より貸主に支払われ返還されない金銭です。

この物件のかんたんお問合せフォーム
お電話でお問合せ(法人用)
外観・間取り図

























大阪府大阪市北区天神橋2丁目