ベル フェリシア 物件詳細情報
このお部屋は募集を終了しました
ただいまこのお部屋は入居募集を終了しており、募集時の情報となっております。お部屋探しの参考としてご利用ください。募集が再度開始しましたら、こちらのページで詳細情報を掲載の上募集開始致します。情報掲載日:2025/05/26
| 沿線・駅 所在地 |
間取り 専有面積 |
種別 建築年月日 |
|
|---|---|---|---|
|
京浜東北・根岸線 蕨駅(徒歩35分)
埼玉県川口市大字安行領根岸 |
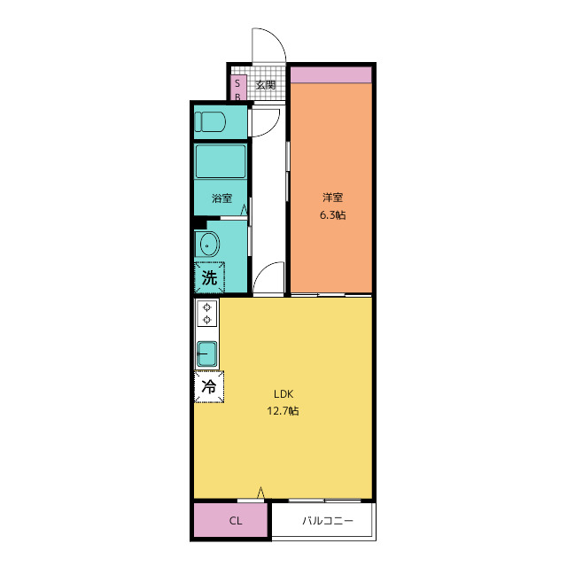
1LDK 48.07m2 |
アパート 2025年2月 |
|
ミニミニの仲介手数料は家賃の55%(税込)です。※直営店は全店対象。但し、駐車場・店舗・事務所・業者仲介及び紹介契約は対象外。※FC店舗は対象外ですので、各店にお問い合わせください。
この物件のお問い合わせ番号 0001-S000087806-0005
設備
| 部屋設備 | ガス給湯 / 浴室給湯あり / キッチン給湯あり / 洗面所給湯あり / TV付モニターホン / 下駄箱 / 電子キー / ガスコンロ(コンロ(2口)) / エアコン / 照明器具 / バルコニー / 洋式トイレ / トイレ電源有 / シャワー / 浴室乾燥機 / 洗髪洗面化粧台 / 洗面化粧台 / 追焚き / 室内洗濯機置場 / バストイレ別 / 保証人不要 / 2人入居 / シャワー付トイレ / クロゼット / 洗面所独立 / シャッター / システムキッチン / オンライン内見 / オンライン接客 / IT重説 |
|---|---|
| 建物設備 | オートロック / 駐輪場 / 宅配ボックス / バイク置き場 / ネット利用料無料 / 敷地内ゴミ置き場 / 防犯カメラ |
物件詳細
| 交通機関 | ・京浜東北・根岸線 蕨駅(徒歩35分) ・武蔵野線 東浦和駅(バス12分 ・伊刈中通り停、 徒歩3分) | ||||
|---|---|---|---|---|---|
| 構造 | 木造 | 総階数 | 3階建て | ||
| 総戸数 | 15戸 | 入居日 | 入居不可(募集終了) | ||
| 飲用水 | 公営 | ガス | 都市 | 排水 | 公共下水 |
| 給湯方式 | ガス給湯(浴室給湯あり・キッチン給湯あり・洗面所給湯あり) | ||||
この物件のお問い合わせ番号 0001-S000087806-0005
類似物件一覧
-
10.7万円
107,000円
-
-
7.2万円
72,000円
-
1LDK
埼玉県川口市芝高木1丁目 -
8.3万円
-
-
1LDK
埼玉県川口市西川口6丁目 -
10.3万円
-
1.0ヶ月
1LDK
埼玉県川口市青木4丁目 -
8.5万円
-
1.0ヶ月
1LDK
埼玉県川口市三ツ和3丁目 -
11.0万円
-
1.0ヶ月
1LDK
埼玉県川口市本町1丁目 -
7.9万円
79,000円
1.0ヶ月
1LDK
埼玉県川口市大字大竹 -
6.8万円
68,000円
-
1LDK
埼玉県川口市上青木西1丁目 -
9.0万円
-
1.0ヶ月
1LDK
埼玉県川口市芝下1丁目 -
9.8万円
98,000円
-
1LDK
埼玉県川口市末広1丁目 -
7.0万円
70,000円
-
1LDK
埼玉県川口市前川2丁目 -
6.8万円
-
-
1LDK
埼玉県川口市上青木西3丁目
店舗情報
お電話での物件問い合わせは無料通話で!(直営店のみ)
0001-S000087806-0005
- 蕨店
-
この物件で来店予約- 来店予約フォーム -
-
無料通話番号を表示
- 京浜東北・根岸線 蕨駅(徒歩1分)
- Tel: 048-432-1932
- 店舗詳細情報
このお部屋に似ている物件を問い合わせる
あわせて店舗への来店を希望のお客様は、上の希望店舗の来店予約フォームをご利用ください(直営店舗のみ)
Sorry,Japanese & English only. 日本語・英語のみ対応しております。ご了承ください。
- ※各種情報と現況に差異がある場合は、現況優先となります。

似た物件を問い合わせる
お電話でお問合せ(無料)
間取り図

埼玉県川口市金山町