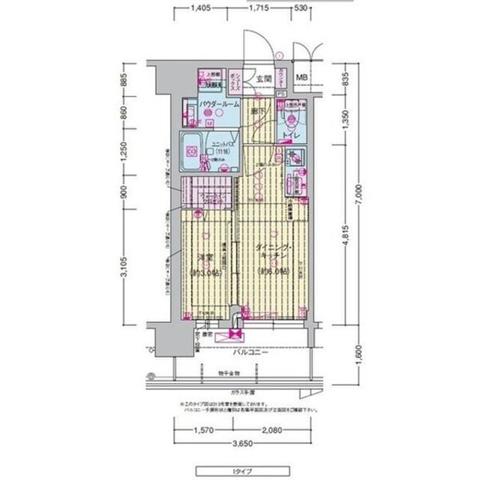
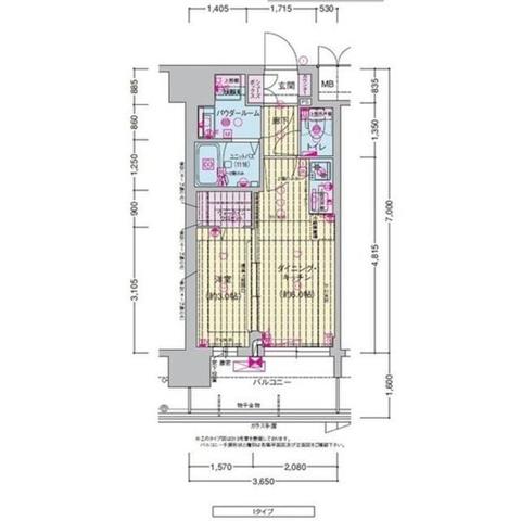
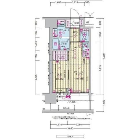
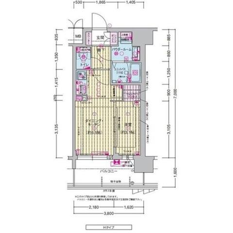
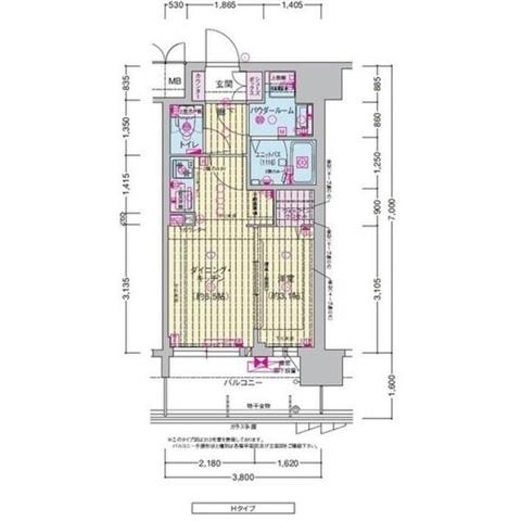
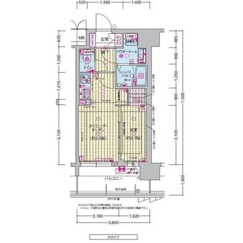
空室一覧
| 所在地 | 大阪市東淀川区西淡路1丁目 | 建築年月 | 2026年2月 |
|---|---|---|---|
| 最寄駅 |
東海道本線 東淀川駅(徒歩1分)
御堂筋線 新大阪駅(徒歩7分) 御堂筋線 東三国駅(徒歩10分) 東海道本線 新大阪駅(徒歩6分) |
||
| 総階数 | 15階建て | 総戸数 | 257戸 | 構造 | RC造 |
|---|---|---|---|---|---|
| 周辺施設 |
・セブンイレブン大阪東淀川駅前店 (298m)・ショッピングプラザ新大阪 (772m)・スーパーかまだ西淡路店 (255m)・スマイル淀川 (537m)・バロー 淡路店 (874m)
※小・中学校は近くの学校を表示しています。学校区が異なる場合がありますのでご了承ください |
||||
店舗情報
お電話での物件問い合わせは無料通話で!(直営店のみ)
- FC阪急淡路駅前店
- 阪急電鉄京都線 淡路駅(徒歩3分)
- Tel: 06-4809-2200
店舗詳細情報
チェックしたお部屋にお問い合わせ
Sorry,Japanese & English only. 日本語・英語のみ対応しております。ご了承ください。
- ※取扱形態はすべて仲介です。 / お部屋の情報は随時更新です / 各種情報と現況に差異がある場合は、現況優先となります。 / 保証会社の審査があります。 / 契約一時金は、契約時に借主より貸主に支払われ返還されない金銭です。

まとめてお問合せ


