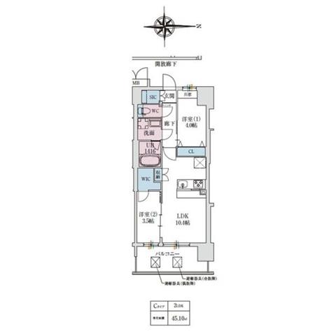
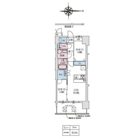
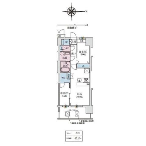
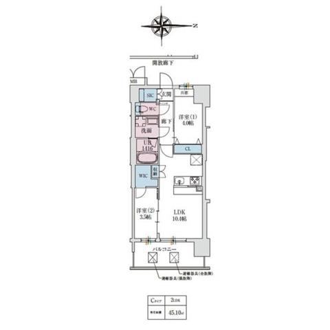
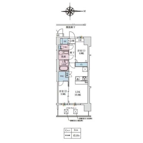
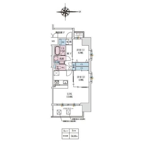
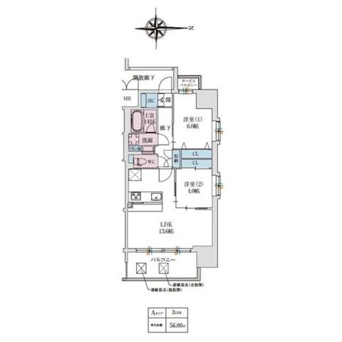
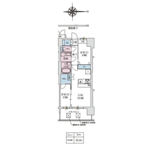
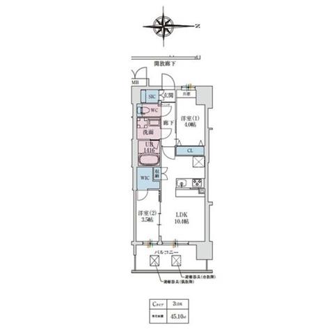
空室一覧
| 所在地 | 大阪市住吉区苅田9丁目 | 建築年月 | 2026年8月 |
|---|---|---|---|
| 最寄駅 |
御堂筋線 あびこ駅(徒歩2分)
阪和線 我孫子町駅(徒歩13分) 阪和線 杉本町駅(徒歩20分) 御堂筋線 長居駅(徒歩20分) |
||
| 総階数 | 15階建て | 総戸数 | 84戸 | 構造 | RC造 |
|---|---|---|---|---|---|
| 周辺施設 |
・業務スーパー我孫子店 (434m)・グルメシティ我孫子店 (553m)・サンディあびこ店 (624m)・デイリーカナートイズミヤ (801m)・阪急オアシスあびこ店 (711m)
※小・中学校は近くの学校を表示しています。学校区が異なる場合がありますのでご了承ください |
||||
店舗情報
お電話での物件問い合わせは無料通話で!(直営店のみ)
- FC北花田店
- 御堂筋線 北花田駅(徒歩1分)
- Tel: 072-246-3232
店舗詳細情報
チェックしたお部屋にお問い合わせ
Sorry,Japanese & English only. 日本語・英語のみ対応しております。ご了承ください。
- ※取扱形態はすべて仲介です。 / お部屋の情報は随時更新です / 各種情報と現況に差異がある場合は、現況優先となります。 / 保証会社の審査があります。 / 契約一時金は、契約時に借主より貸主に支払われ返還されない金銭です。

まとめてお問合せ

