AXIA CITY大阪淡路
空室一覧
| 所在地 | 大阪市東淀川区菅原3丁目 | 建築年月 | 2026年3月 |
|---|---|---|---|
| 最寄駅 |
おおさか東線 JR淡路駅(徒歩8分)
阪急電鉄京都線 淡路駅(徒歩12分) |
||
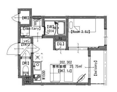
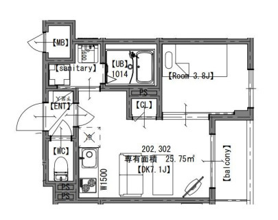
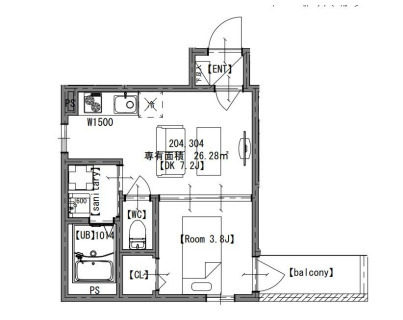
| 総階数 | 4階建て | 総戸数 | 20戸 | 構造 | 鉄骨造 |
|---|---|---|---|---|---|
| 周辺施設 |
・【ショッピングセンター】イオンスタイル東淀川 (560m)・【家電製品】エディオン(東淡路) (487m)・【その他】ゲオ (559m)・【その他】医誠会病院 (292m)・【スーパー】ライフ(東淡路) (456m)・【ゲームセンター】ラウンドワン 東淀川店 (490m)・【郵便局】東淀川郵便局 (1,062m)・【スーパー】Izumiya(イズミヤ) 淡路店 (1,201m)・【スーパー】アカシヤ 淡路店 (765m)・スーパー (456m)
※小・中学校は近くの学校を表示しています。学校区が異なる場合がありますのでご了承ください |
||||
チェックした物件を
まとめてお問合せ
まとめてお問合せ
店舗情報
- 三重法人部
- 059-356-8041
- 三重県四日市市鵜の森1丁目1-19太平洋鵜の森ビル5階
チェックしたお部屋にお問い合わせ
Sorry,Japanese & English only. 日本語・英語のみ対応しております。ご了承ください。
- ※取扱形態はすべて仲介です。 / お部屋の情報は随時更新です / 各種情報と現況に差異がある場合は、現況優先となります。 / 保証会社の審査があります。 / 契約一時金は、契約時に借主より貸主に支払われ返還されない金銭です。























































































