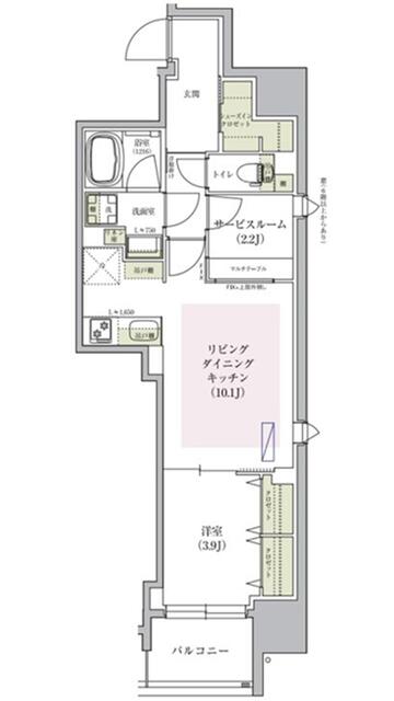
アーバネックス堺筋本町
空室一覧
| 所在地 | 大阪市中央区南本町2丁目 | 建築年月 | 2025年12月 |
|---|---|---|---|
| 最寄駅 |
大阪メトロ中央線 堺筋本町駅(徒歩4分)
大阪メトロ御堂筋線 本町駅(徒歩7分) |
||
| 総階数 | 15階建て | 総戸数 | 56戸 | 構造 | RC造 |
|---|---|---|---|---|---|
| 周辺施設 |
・【スーパー】ライフ 堺筋本町店 (463m)・【スーパー】FRESCO(フレスコ) ミニ 御堂筋本町店 (567m)・【スーパー】KOHYO(コーヨー) 南船場店 (566m)・【コンビニエンスストア】ファミリーマート カツラギ南本町店 (298m)・【コンビニエンスストア】セブンイレブン 大阪南本町2丁目店 (128m)・【銀行】ゆうちょ銀行大阪東店 (612m)・【市役所・区役所】大阪市中央区役所 (568m)・【警察】東警察署 (428m)・【ドラッグストア】スギドラッグ 北久宝寺店 (496m)・【郵便局】大阪東郵便局 (612m)・コンビニ (298m)・スーパー (463m)
※小・中学校は近くの学校を表示しています。学校区が異なる場合がありますのでご了承ください |
||||
店舗情報
お電話での物件問い合わせは無料通話で!(直営店のみ)
- FC東三国店
- 御堂筋線 東三国駅(徒歩1分)
- Tel: 06-6399-3251
店舗詳細情報
チェックしたお部屋にお問い合わせ
Sorry,Japanese & English only. 日本語・英語のみ対応しております。ご了承ください。
- ※取扱形態はすべて仲介です。 / お部屋の情報は随時更新です / 各種情報と現況に差異がある場合は、現況優先となります。 / 保証会社の審査があります。 / 契約一時金は、契約時に借主より貸主に支払われ返還されない金銭です。

まとめてお問合せ




























































































































































































































































