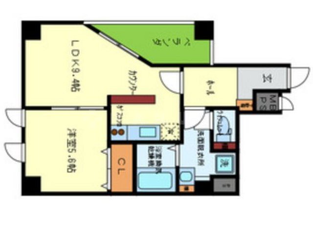
シーサX 空室一覧
| 所在地 | 大阪市北区西天満4丁目 | 建築年月 | 1999年10月 |
|---|---|---|---|
| 最寄駅 |
JR東西線 北新地駅(徒歩8分)
大阪メトロ谷町線 東梅田駅(徒歩7分) |
||
| 総階数 | 10階建て | 総戸数 | 29戸 | 構造 | 鉄骨造 |
|---|---|---|---|---|---|
| 周辺施設 |
・【公園】中之島公園 (1,017m)・【デパート】LordCamelot阪急メンズ大阪店 (876m)・【スーパー】ライフ 太融寺店 (842m)・【スーパー】KOHYO(コーヨー) 南森町店 (919m)・【コンビニエンスストア】セブンイレブン 大阪西天満1丁目店 (777m)・【コンビニエンスストア】ファミリーマート 西天満店 (770m)・【ドラッグストア】スギドラッグ 南森町店 (1,008m)・【総合病院】北野病院 (1,335m)・【図書館】大阪府立中之島図書館 (541m)・コンビニ (777m)・スーパー (842m)・総合病院 (1,335m)
※小・中学校は近くの学校を表示しています。学校区が異なる場合がありますのでご了承ください |
||||
店舗情報
お電話での物件問い合わせは無料通話で!(直営店のみ)
- FC天満橋店
- 谷町線 天満橋駅(徒歩1分)
- Tel: 06-6920-4848
店舗詳細情報
チェックしたお部屋にお問い合わせ
Sorry,Japanese & English only. 日本語・英語のみ対応しております。ご了承ください。
- ※取扱形態はすべて仲介です。 / お部屋の情報は随時更新です / 各種情報と現況に差異がある場合は、現況優先となります。 / 保証会社の審査があります。 / 契約一時金は、契約時に借主より貸主に支払われ返還されない金銭です。

まとめてお問合せ














