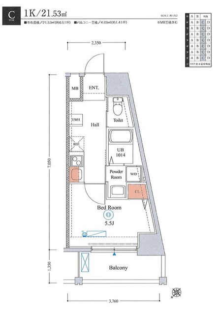
エストゥルースプラス大阪福島 空室一覧
| 所在地 | 大阪市福島区吉野5丁目 | 建築年月 | 2020年7月 |
|---|---|---|---|
| 最寄駅 |
JR大阪環状線 西九条駅(徒歩9分)
阪神電鉄阪神なんば線 千鳥橋駅(徒歩10分) |
||
| 総階数 | 9階建て | 総戸数 | - | 構造 | RC造 |
|---|---|---|---|---|---|
| 周辺施設 |
・【公園】野田緑地 (729m)・【スーパー】ライフ 西九条店 (600m)・【スーパー】MaxValu千鳥橋店 (826m)・【スーパー】スーパーマルハチ 大開店 (922m)・【スーパー】スーパーサンコー此花店 (1,107m)・【スーパー】mandai(万代) 福島吉野店 (222m)・【コンビニエンスストア】ファミリーマート 西野田店 (1,028m)・【コンビニエンスストア】ファミリーマート 西九条三丁目店 (487m)・【コンビニエンスストア】ローソン 大開三丁目店 (622m)・【コンビニエンスストア】ファミリーマート 千鳥橋駅前店 (826m)・コンビニ (1,028m)・スーパー (600m)
※小・中学校は近くの学校を表示しています。学校区が異なる場合がありますのでご了承ください |
||||
店舗情報
お電話での物件問い合わせは無料通話で!(直営店のみ)
- FC西中島南方店
- 御堂筋線 西中島南方駅(徒歩1分)
- Tel: 06-6390-3211
店舗詳細情報
チェックしたお部屋にお問い合わせ
Sorry,Japanese & English only. 日本語・英語のみ対応しております。ご了承ください。
- ※取扱形態はすべて仲介です。 / お部屋の情報は随時更新です / 各種情報と現況に差異がある場合は、現況優先となります。 / 保証会社の審査があります。 / 契約一時金は、契約時に借主より貸主に支払われ返還されない金銭です。

まとめてお問合せ









































