スプランディッド?
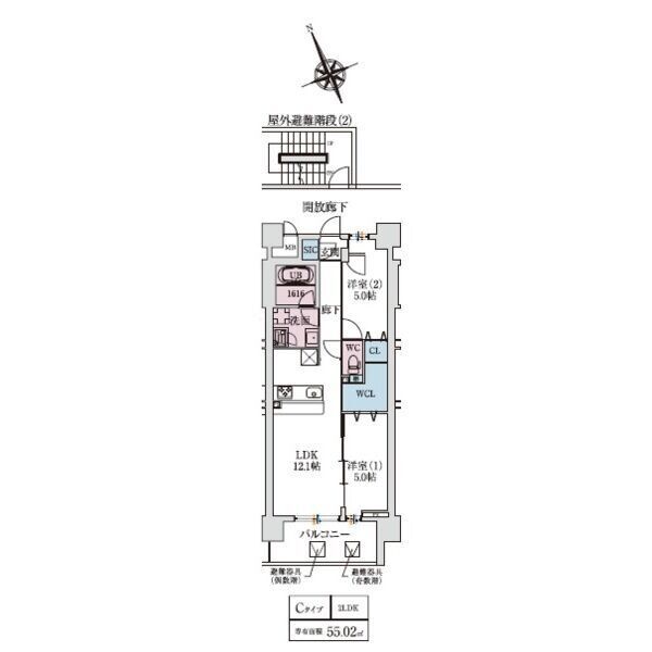
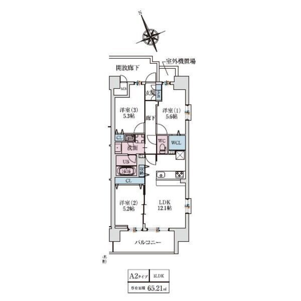
空室一覧
| 所在地 | 大阪市西淀川区福町2丁目 | 建築年月 | 2026年3月 |
|---|---|---|---|
| 最寄駅 |
阪神電鉄阪神なんば線 福駅(徒歩10分)
阪神電鉄阪神なんば線 出来島駅(徒歩21分) |
||
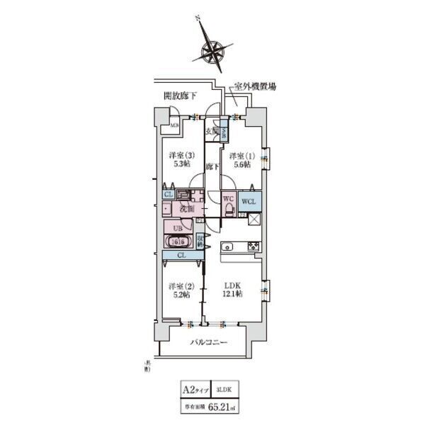
| 総階数 | 14階建て | 総戸数 | 78戸 | 構造 | RC造 |
|---|---|---|---|---|---|
| 周辺施設 |
・【公園】西淀公園 (1,904m)・コンビニ (2,490m)・スーパー (2,261m)
※小・中学校は近くの学校を表示しています。学校区が異なる場合がありますのでご了承ください |
||||
店舗情報
お電話での物件問い合わせは無料通話で!(直営店のみ)
- FC新大阪店
- 御堂筋線 新大阪駅(徒歩2分)
- Tel: 06-6100-0021
店舗詳細情報
チェックしたお部屋にお問い合わせ
Sorry,Japanese & English only. 日本語・英語のみ対応しております。ご了承ください。
- ※取扱形態はすべて仲介です。 / お部屋の情報は随時更新です / 各種情報と現況に差異がある場合は、現況優先となります。 / 保証会社の審査があります。 / 契約一時金は、契約時に借主より貸主に支払われ返還されない金銭です。

まとめてお問合せ







































































































































































































































































































































































































































































































































































































































































































































































































































































































































































































































