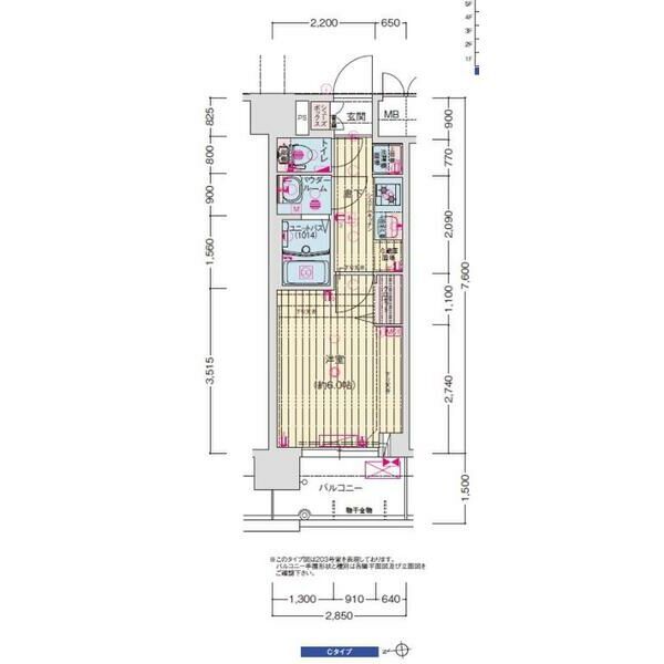
プレサンス大正フレンジ 空室一覧
| 所在地 | 大阪市大正区三軒家東2丁目 | 建築年月 | 2024年6月 |
|---|---|---|---|
| 最寄駅 |
大阪メトロ長堀鶴見緑地線 大正駅(徒歩5分)
JR大阪環状線 大正駅(徒歩5分) |
||
| 総階数 | 15階建て | 総戸数 | 148戸 | 構造 | RC造 |
|---|---|---|---|---|---|
| 周辺施設 |
・【レンタルビデオ】TSUTAYA 大正駅前店 (598m)・【スーパー】コノミヤ ピコ泉尾店 (1,039m)・【スーパー】食品館アプロ 桜川店 (1,274m)・【スーパー】ライフ 塩草店 (1,125m)・【コンビニエンスストア】セブンイレブン 大阪三泉市場通店 (770m)・【ファーストフード】ケンタッキーフライドチキン 芦原橋店 (1,338m)・【内科】足立医院 (960m)・【郵便局】浪速芦原郵便局 (1,387m)・【郵便局】浪速稲荷郵便局 (1,237m)・コンビニ (770m)・スーパー (1,039m)
※小・中学校は近くの学校を表示しています。学校区が異なる場合がありますのでご了承ください |
||||
店舗情報
お電話での物件問い合わせは無料通話で!(直営店のみ)
- FC西中島南方店
- 御堂筋線 西中島南方駅(徒歩1分)
- Tel: 06-6390-3211
店舗詳細情報
チェックしたお部屋にお問い合わせ
Sorry,Japanese & English only. 日本語・英語のみ対応しております。ご了承ください。
- ※取扱形態はすべて仲介です。 / お部屋の情報は随時更新です / 各種情報と現況に差異がある場合は、現況優先となります。 / 保証会社の審査があります。 / 契約一時金は、契約時に借主より貸主に支払われ返還されない金銭です。

まとめてお問合せ













































































































