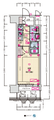
ソルテラスOSAKA弁天町クレアスト 空室一覧
| 所在地 | 大阪市港区磯路2丁目 | 建築年月 | 2025年3月 |
|---|---|---|---|
| 最寄駅 |
大阪メトロ中央線 弁天町駅(徒歩7分)
JR大阪環状線 弁天町駅(徒歩9分) |
||
| 総階数 | 9階建て | 総戸数 | 40戸 | 構造 | RC造 |
|---|---|---|---|---|---|
| 周辺施設 |
・【公園】市岡公園 (185m)・【スーパー】ライフ 弁天町店 (431m)・【ショッピングセンター】オーク200 (643m)・【ディスカウントショップ】MEGAドン・キホーテ弁天町店 (458m)・【ホームセンター】ホームセンターコーナン 弁天町店 (550m)・【総合病院】独立行政法人地域医療機能推進機構大阪みなと中央病院 (550m)・【警察】港警察署 (738m)・【市役所・区役所】大阪市港区役所 (430m)・スーパー (431m)・総合病院 (550m)
※小・中学校は近くの学校を表示しています。学校区が異なる場合がありますのでご了承ください |
||||
店舗情報
お電話での物件問い合わせは無料通話で!(直営店のみ)
- FC心斎橋店
- 御堂筋線 心斎橋駅(徒歩2分)
- Tel: 06-6253-6060
店舗詳細情報
チェックしたお部屋にお問い合わせ
Sorry,Japanese & English only. 日本語・英語のみ対応しております。ご了承ください。
- ※取扱形態はすべて仲介です。 / お部屋の情報は随時更新です / 各種情報と現況に差異がある場合は、現況優先となります。 / 保証会社の審査があります。 / 契約一時金は、契約時に借主より貸主に支払われ返還されない金銭です。

まとめてお問合せ






















