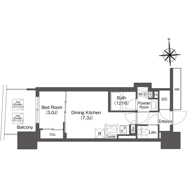
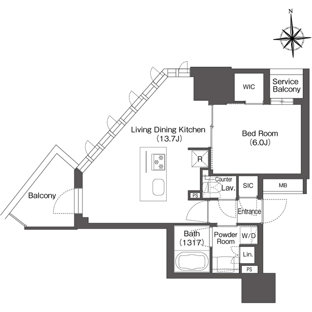
空室一覧
| 所在地 | 大阪市西区立売堀3丁目 | 建築年月 | 2025年2月 |
|---|---|---|---|
| 最寄駅 |
大阪メトロ中央線 阿波座駅(徒歩1分)
大阪メトロ四つ橋線 本町駅(徒歩9分) |
||
| 総階数 | 17階建て | 総戸数 | 130戸 | 構造 | RC造 |
|---|---|---|---|---|---|
| 周辺施設 |
・【公園】立売堀公園 (489m)・【スーパー】ライフ阿波座駅前店 (390m)・【ホームセンター】ホームセンターコーナン西本町店 (356m)・【ドラッグストア】ドラッグアカカベ 阿波座店 (140m)・【総合病院】日本生命病院 (690m)・コンビニ (37m)・スーパー (390m)・総合病院 (690m)
※小・中学校は近くの学校を表示しています。学校区が異なる場合がありますのでご了承ください |
||||
店舗情報
お電話での物件問い合わせは無料通話で!(直営店のみ)
- FC天満橋店
- 谷町線 天満橋駅(徒歩1分)
- Tel: 06-6920-4848
店舗詳細情報
チェックしたお部屋にお問い合わせ
Sorry,Japanese & English only. 日本語・英語のみ対応しております。ご了承ください。
- ※取扱形態はすべて仲介です。 / お部屋の情報は随時更新です / 各種情報と現況に差異がある場合は、現況優先となります。 / 保証会社の審査があります。 / 契約一時金は、契約時に借主より貸主に支払われ返還されない金銭です。

まとめてお問合せ

















































































































