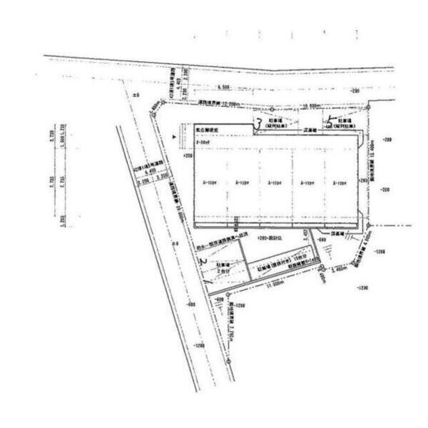
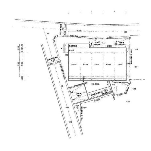
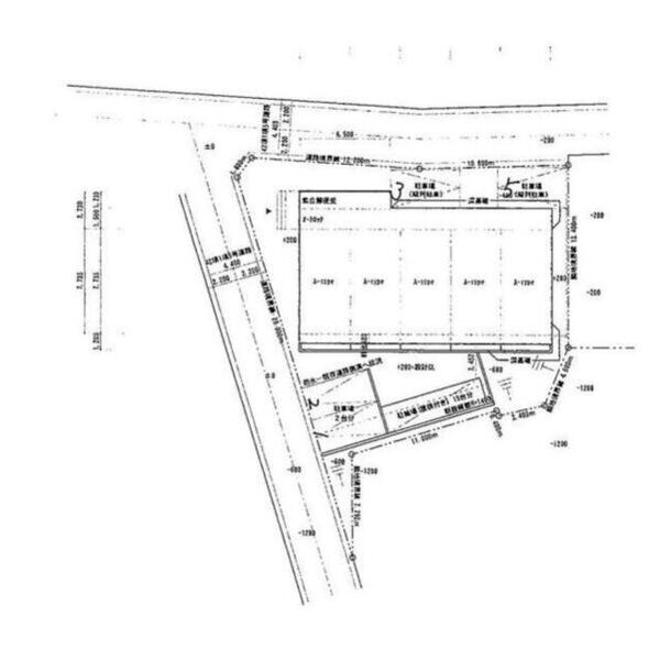
リコルテ サントルモンターニュ 空室一覧
| 所在地 | 豊中市春日町3丁目 | 建築年月 | 2019年8月 |
|---|---|---|---|
| 最寄駅 |
大阪モノレール本線 少路駅(徒歩17分)
大阪モノレール本線 柴原阪大前駅(徒歩17分) |
||
| 総階数 | 3階建て | 総戸数 | - | 構造 | 軽量鉄骨造 |
|---|---|---|---|---|---|
| 周辺施設 |
・【スーパー】食品館アプロ 豊中春日店 (235m)・スーパー (235m)
※小・中学校は近くの学校を表示しています。学校区が異なる場合がありますのでご了承ください |
||||
店舗情報
お電話での物件問い合わせは無料通話で!(直営店のみ)
- FC桃山台店
- 北大阪急行南北線 桃山台駅(徒歩1分)
- Tel: 06-6872-3211
店舗詳細情報
チェックしたお部屋にお問い合わせ
Sorry,Japanese & English only. 日本語・英語のみ対応しております。ご了承ください。
- ※取扱形態はすべて仲介です。 / お部屋の情報は随時更新です / 各種情報と現況に差異がある場合は、現況優先となります。 / 保証会社の審査があります。 / 契約一時金は、契約時に借主より貸主に支払われ返還されない金銭です。

まとめてお問合せ




























































































