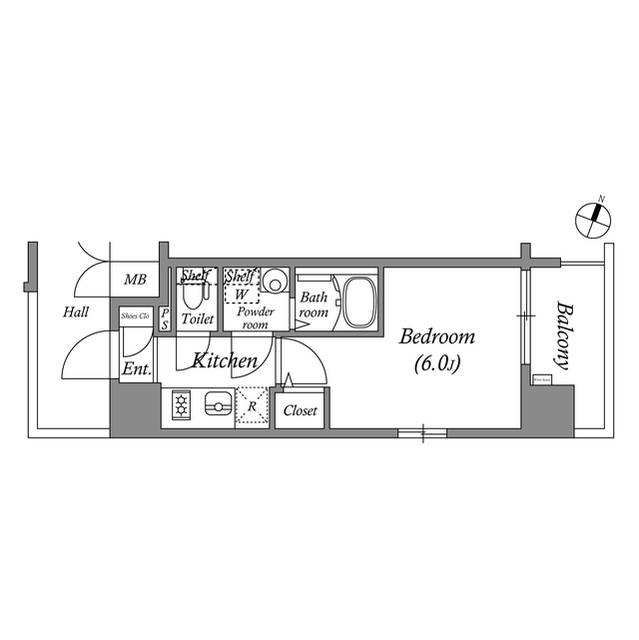
エスリード弁天町ポートヴィラ 空室一覧
| 所在地 | 大阪市港区市岡元町2丁目 | 建築年月 | 2020年6月 |
|---|---|---|---|
| 最寄駅 |
JR大阪環状線 弁天町駅(徒歩7分)
大阪メトロ中央線 九条駅(徒歩13分) |
||
| 総階数 | 10階建て | 総戸数 | 72戸 | 構造 | RC造 |
|---|---|---|---|---|---|
| 周辺施設 |
・【スーパー】グルメシティ九条店 (563m)・【ファーストフード】マクドナルド JR弁天町店 (702m)・【家電製品】エディオンフォレオ大阪ドームシティ店 (711m)・【コンビニエンスストア】セブンイレブン 大阪九条南2丁目店 (898m)・【警察】港警察署 (1,044m)・コンビニ (898m)・スーパー (563m)
※小・中学校は近くの学校を表示しています。学校区が異なる場合がありますのでご了承ください |
||||
店舗情報
お電話での物件問い合わせは無料通話で!(直営店のみ)
- FC本町店
- 御堂筋線 本町駅(徒歩1分)
- Tel: 06-6253-4455
店舗詳細情報
チェックしたお部屋にお問い合わせ
Sorry,Japanese & English only. 日本語・英語のみ対応しております。ご了承ください。
- ※取扱形態はすべて仲介です。 / お部屋の情報は随時更新です / 各種情報と現況に差異がある場合は、現況優先となります。 / 保証会社の審査があります。 / 契約一時金は、契約時に借主より貸主に支払われ返還されない金銭です。

まとめてお問合せ
































