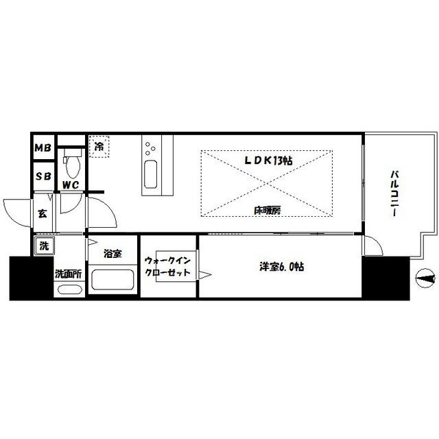
空室一覧
| 所在地 | 大阪市西区新町3丁目 | 建築年月 | 2018年7月 |
|---|---|---|---|
| 最寄駅 |
大阪メトロ長堀鶴見緑地線 西長堀駅(徒歩2分)
大阪メトロ四つ橋線 四ツ橋駅(徒歩15分) |
||
| 総階数 | 15階建て | 総戸数 | 70戸 | 構造 | RC造 |
|---|---|---|---|---|---|
| 周辺施設 |
・【公園】靱公園 (1,148m)・【スーパー】阪急オアシス新町店 (265m)・【スーパー】イオンフードスタイル四ツ橋店 (916m)・【スーパー】ライフ ビオラル靭店 (796m)・【市役所・区役所】大阪市西区役所 (361m)・スーパー (265m)
※小・中学校は近くの学校を表示しています。学校区が異なる場合がありますのでご了承ください |
||||
チェックした物件を
まとめてお問合せ
まとめてお問合せ
店舗情報
- 三重法人部
- 059-356-8041
- 三重県四日市市鵜の森1丁目1-19太平洋鵜の森ビル5階
チェックしたお部屋にお問い合わせ
Sorry,Japanese & English only. 日本語・英語のみ対応しております。ご了承ください。
- ※取扱形態はすべて仲介です。 / お部屋の情報は随時更新です / 各種情報と現況に差異がある場合は、現況優先となります。 / 保証会社の審査があります。 / 契約一時金は、契約時に借主より貸主に支払われ返還されない金銭です。












































