ソラノア
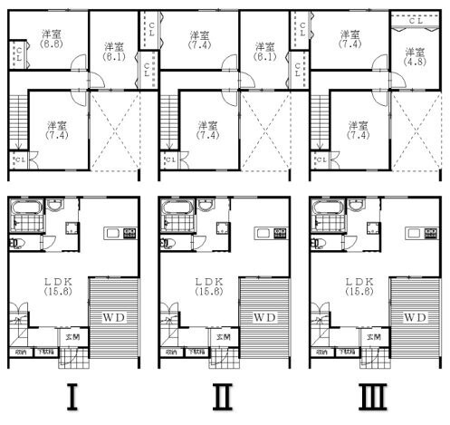
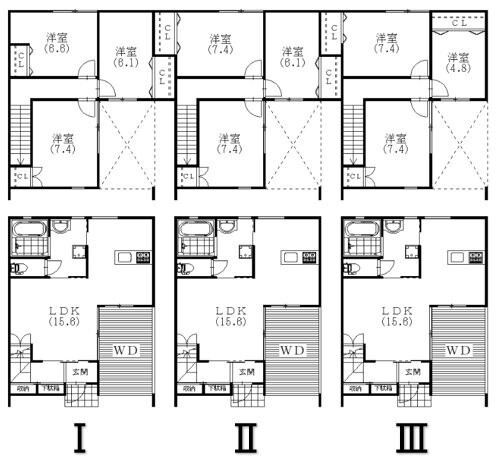
空室一覧
| 所在地 | 浜松市中央区富塚町 | 建築年月 | 2026年2月 |
|---|---|---|---|
| 最寄駅 |
バス・富塚停(徒歩3分)
東海道・山陽新幹線 浜松駅(徒歩57分) 遠州鉄道 遠州病院駅(徒歩48分) |
||
| 総階数 | 2階建て | 総戸数 | 3戸 | 構造 | 木造 |
|---|---|---|---|---|---|
| 周辺施設 |
・浜松市立富塚小学校 (513m)・浜松市立富塚中学校 (527m)・富塚幼稚園 (653m)・静岡県立浜松商業高校 (1,263m)・浜松市中央区役所 (3,247m)・浜松富塚郵便局 (124m)・浜松学院大学図書館 (1,465m)・浜松中央警察署 (3,948m)・富塚公園 (1,038m)・浜松医療センター (1,566m)・JAとぴあ浜松富塚支店 (284m)・ユーコープ富塚店 (215m)・ローソン浜松富塚店 (585m)・遠鉄百貨店 (4,553m)・杏林堂薬局富塚店 (948m)・ベスト電器BFS佐鳴台店 (2,565m)・私立浜松学院大学布橋キャンパス (1,437m)・TSUTAYA佐鳴台店 (3,638m)・さわやか浜松富塚店 (524m)
※小・中学校は近くの学校を表示しています。学校区が異なる場合がありますのでご了承ください |
||||
店舗情報
お電話での物件問い合わせは無料通話で!(直営店のみ)
- 浜松高台店
-
無料通話はこちらを
クリックして番号表示! - バス・せいれい病院入口停(徒歩1分)
- Tel: 053-471-3232
店舗詳細情報
チェックしたお部屋にお問い合わせ
Sorry,Japanese & English only. 日本語・英語のみ対応しております。ご了承ください。
- ※取扱形態はすべて仲介です。 / お部屋の情報は随時更新です / 各種情報と現況に差異がある場合は、現況優先となります。 / 保証会社の審査があります。 / 契約一時金は、契約時に借主より貸主に支払われ返還されない金銭です。

まとめてお問合せ








































