ベイ・イースト 空室一覧
| 所在地 | 横浜市神奈川区東神奈川2丁目 | 建築年月 | 1992年2月 |
|---|---|---|---|
| 最寄駅 |
京浜急行電鉄本線 京急東神奈川駅(徒歩3分)
横浜線 東神奈川駅(徒歩4分) 東急東横線 東白楽駅(徒歩12分) |
||
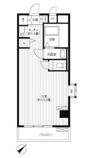
| 総階数 | 10階建て | 総戸数 | 67戸 | 構造 | RC造 |
|---|---|---|---|---|---|
| 周辺施設 |
・横浜市立神奈川小学校 (347m)・横浜市立浦島丘中学校 (1,244m)・きゃんばす東神奈川保育園 (166m)・マルエツ東神奈川店 (500m)・セブンイレブン横浜東神奈川1丁目店 (409m)・クリエイトエス・ディー横浜反町店 (1,188m)・CIAL PLAT東神奈川 (425m)
※小・中学校は近くの学校を表示しています。学校区が異なる場合がありますのでご了承ください |
||||
店舗情報
お電話での物件問い合わせは無料通話で!(直営店のみ)
- 東白楽店
-
無料通話はこちらを
クリックして番号表示! - 東急東横線 東白楽駅(徒歩1分)
- Tel: 045-413-0031
店舗詳細情報
チェックしたお部屋にお問い合わせ
Sorry,Japanese & English only. 日本語・英語のみ対応しております。ご了承ください。
- ※取扱形態はすべて仲介です。 / お部屋の情報は随時更新です / 各種情報と現況に差異がある場合は、現況優先となります。 / 保証会社の審査があります。 / 契約一時金は、契約時に借主より貸主に支払われ返還されない金銭です。

まとめてお問合せ
























