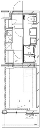
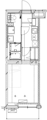
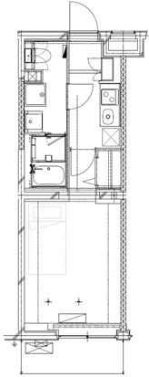
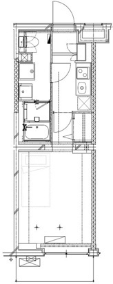
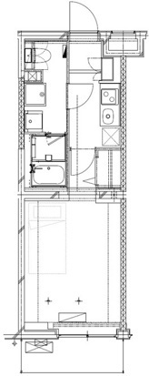
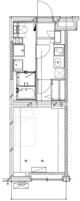
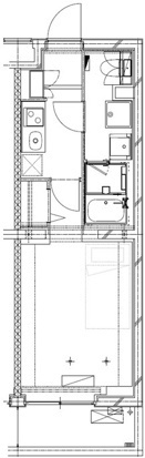
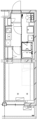
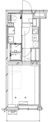
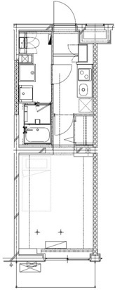
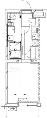
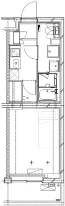
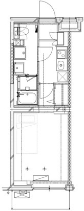
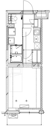
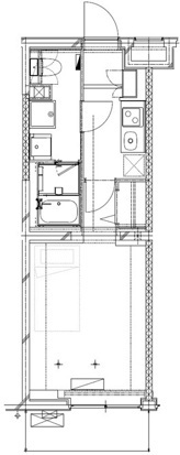
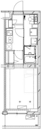
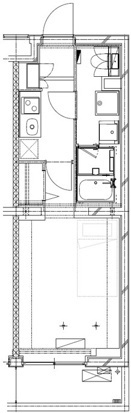
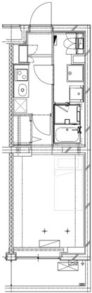
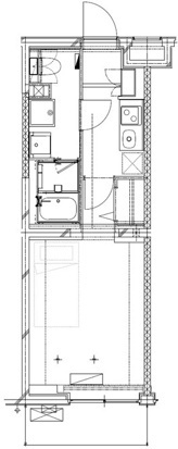
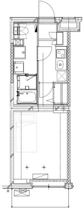
GENOVIA二子新地
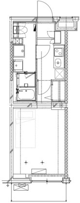
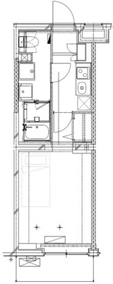
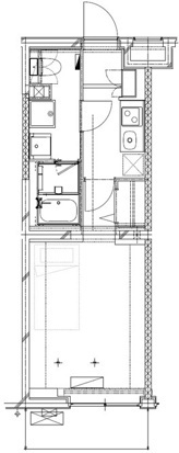
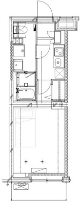
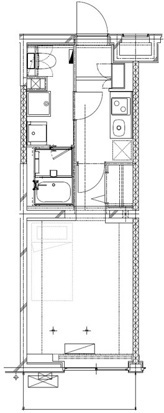
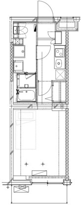
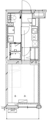
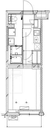
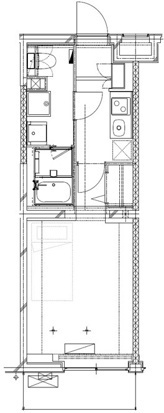
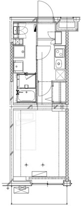
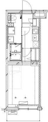
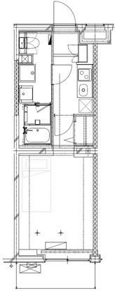
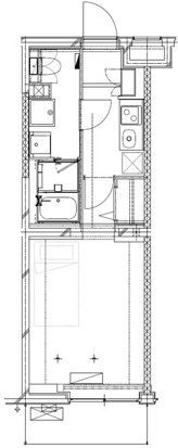
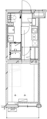
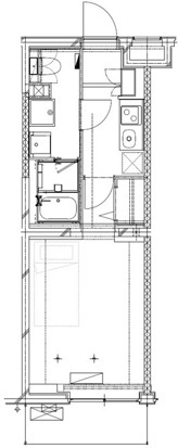
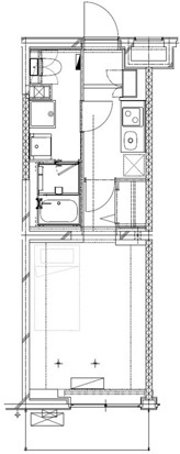
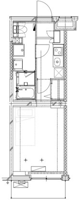
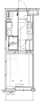
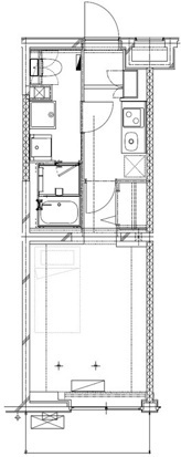
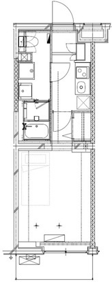
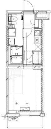
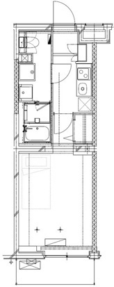
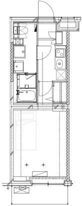
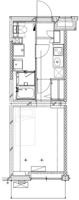
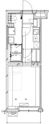
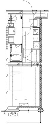
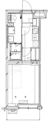
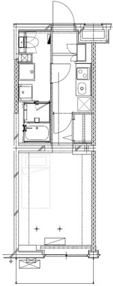
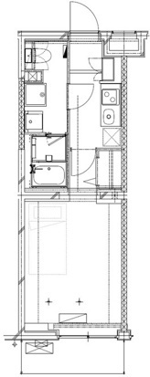
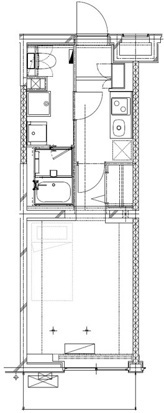
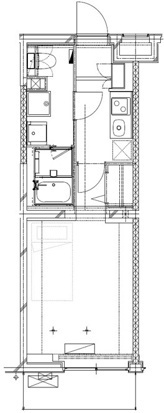
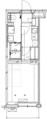
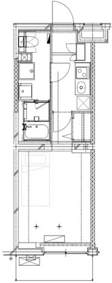
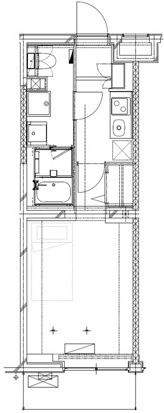
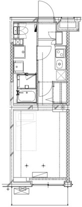
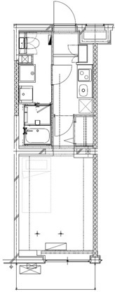
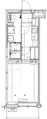
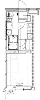
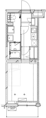
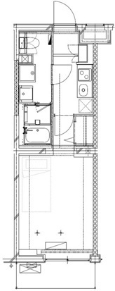
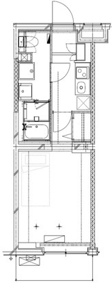
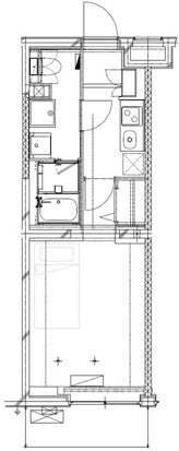
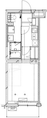
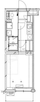
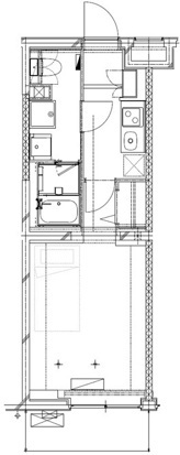
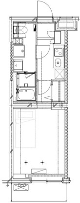
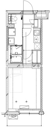
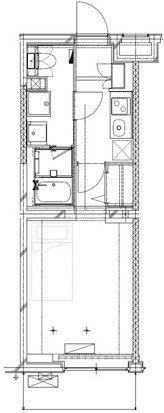
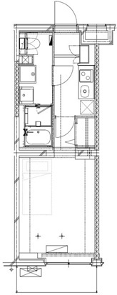
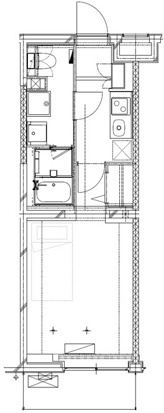
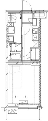
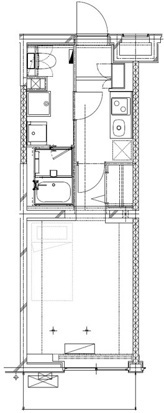
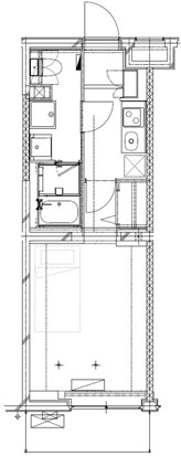
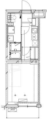
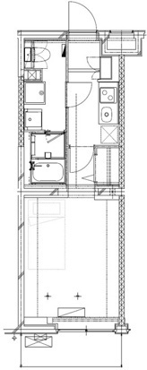
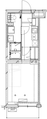
空室一覧
| 所在地 | 川崎市高津区瀬田 | 建築年月 | 2025年11月 |
|---|---|---|---|
| 最寄駅 |
東急田園都市線 二子新地駅(徒歩5分)
東急田園都市線 高津駅(徒歩11分) 東急田園都市線 二子玉川駅(徒歩13分) |
||
| 総階数 | 5階建て | 総戸数 | 107戸 | 構造 | RC造 |
|---|---|---|---|---|---|
| 周辺施設 |
・まいばすけっと川崎二子新地店 (312m)・川崎諏訪郵便局 (263m)・富士ガーデン二子新地駅前店 (423m)・ココカラファイン二子新地店 (361m)・川崎市高津区役所 (2,168m)・川崎市立高津図書館 (1,265m)・高津警察署 (1,097m)・帝京大学医学部附属溝口病院 (1,206m)・JAセレサ川崎北見方支店 (1,093m)・セブンイレブン川崎諏訪店 (293m)・玉川タカシマヤ (1,222m)・ウエルシア二子新地店 (316m)・クリエイトエス・ディー川崎高津店 (1,017m)・エディオン二子玉川蔦屋家電 (1,338m)・エディオン246溝口店 (1,492m)・キッチンオリジン二子新地店 (256m)・珈琲館二子新地駅店 (329m)・二子玉川ライズ・ショッピングセンター・テラスマーケット (1,312m)
※小・中学校は近くの学校を表示しています。学校区が異なる場合がありますのでご了承ください |
||||
店舗情報
お電話での物件問い合わせは無料通話で!(直営店のみ)
- 溝ノ口店
-
無料通話はこちらを
クリックして番号表示! - 東急田園都市線 溝の口駅(徒歩3分)
- Tel: 044-820-0532
店舗詳細情報
チェックしたお部屋にお問い合わせ
Sorry,Japanese & English only. 日本語・英語のみ対応しております。ご了承ください。
- ※取扱形態はすべて仲介です。 / お部屋の情報は随時更新です / 各種情報と現況に差異がある場合は、現況優先となります。 / 保証会社の審査があります。 / 契約一時金は、契約時に借主より貸主に支払われ返還されない金銭です。

まとめてお問合せ































































































