ブライズ鷺沼
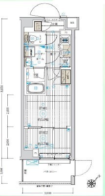
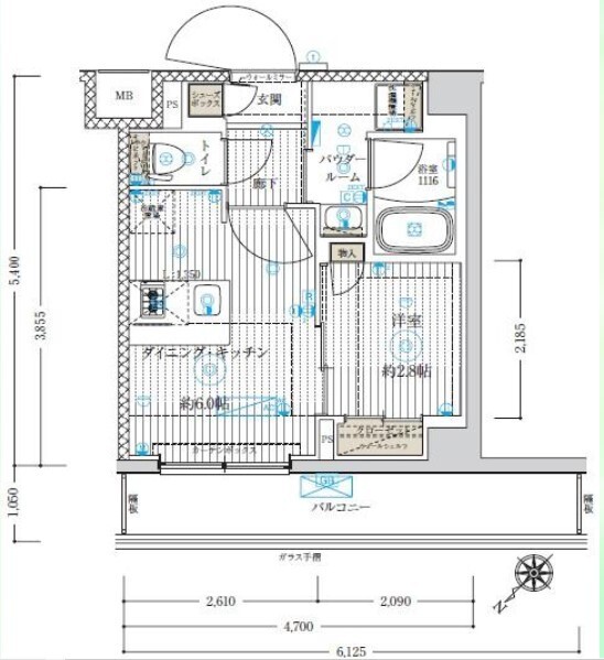
空室一覧
| 所在地 | 川崎市宮前区土橋2丁目 | 建築年月 | 2025年10月 |
|---|---|---|---|
| 最寄駅 |
東急田園都市線 鷺沼駅(徒歩11分)
東急田園都市線 宮前平駅(徒歩12分) 東急田園都市線 たまプラーザ駅(徒歩25分) |
||
| 総階数 | 4階建て | 総戸数 | 58戸 | 構造 | RC造 |
|---|---|---|---|---|---|
| 周辺施設 |
・まいばすけっと土橋2丁目店 (660m)・セブンイレブン川崎土橋南店 (69m)・Fit Care DEPOT東名川崎店 (205m)・川崎市宮前区役所 (862m)・川崎市立土橋小学校 (637m)・川崎市立犬蔵中学校 (1,301m)・宮前区立土橋保育園 (148m)・神奈川県立川崎北高校 (2,392m)・川崎土橋郵便局 (540m)・川崎市立宮前図書館 (1,020m)・宮前警察署 (941m)・向ケ丘緑地 (1,084m)・(財)聖マリアンナ会東横惠愛病院 (2,040m)・城南信用金庫鷺沼支店 (749m)・東急ストアフレルさぎ沼店 (971m)・東急百貨店たまプラーザ店 (2,079m)・Francfrancたまプラーザ店 (1,973m)・私立國學院大学横浜たまプラーザキャンパス (2,148m)・ゲオ野川店 (4,255m)
※小・中学校は近くの学校を表示しています。学校区が異なる場合がありますのでご了承ください |
||||
店舗情報
お電話での物件問い合わせは無料通話で!(直営店のみ)
- 溝ノ口店
-
無料通話はこちらを
クリックして番号表示! - 東急田園都市線 溝の口駅(徒歩3分)
- Tel: 044-820-0532
店舗詳細情報
チェックしたお部屋にお問い合わせ
Sorry,Japanese & English only. 日本語・英語のみ対応しております。ご了承ください。
- ※取扱形態はすべて仲介です。 / お部屋の情報は随時更新です / 各種情報と現況に差異がある場合は、現況優先となります。 / 保証会社の審査があります。 / 契約一時金は、契約時に借主より貸主に支払われ返還されない金銭です。

まとめてお問合せ
































































































































































































































































































