ルフォンリヴェント杉並永福
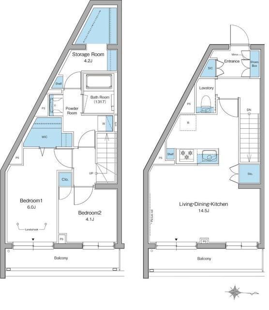
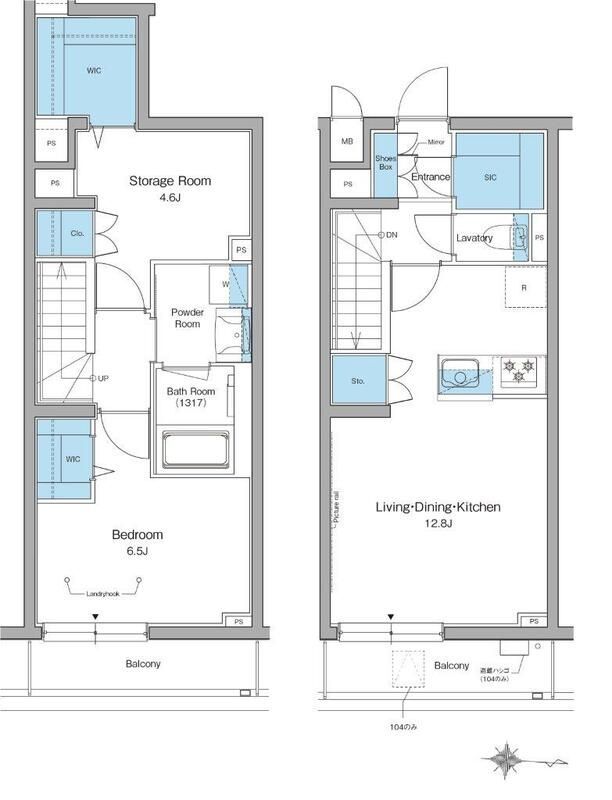
空室一覧
| 所在地 | 杉並区永福3丁目 | 建築年月 | 2025年8月 |
|---|---|---|---|
| 最寄駅 |
京王電鉄井の頭線 西永福駅(徒歩3分)
京王電鉄井の頭線 永福町駅(徒歩7分) 京王電鉄京王線 桜上水駅(徒歩18分) |
||
| 総階数 | 3階建て | 総戸数 | 23戸 | 構造 | RC造 |
|---|---|---|---|---|---|
| 周辺施設 |
・杉並区立永福小学校 (614m)・杉並区立向陽中学校 (1,011m)・ベネッセ永福北保育園 (124m)・杉並西永福郵便局 (310m)・サミットストア西永福店 (193m)・ファミリーマート西永福駅前店 (238m)・ウエルシア西永福店 (208m)・京王リトナード永福町 (694m)
※小・中学校は近くの学校を表示しています。学校区が異なる場合がありますのでご了承ください |
||||
店舗情報
お電話での物件問い合わせは無料通話で!(直営店のみ)
- 明大前店
-
無料通話はこちらを
クリックして番号表示! - 京王電鉄京王線 明大前駅(徒歩1分)
- Tel: 03-3321-3200
店舗詳細情報
チェックしたお部屋にお問い合わせ
Sorry,Japanese & English only. 日本語・英語のみ対応しております。ご了承ください。
- ※取扱形態はすべて仲介です。 / お部屋の情報は随時更新です / 各種情報と現況に差異がある場合は、現況優先となります。 / 保証会社の審査があります。 / 契約一時金は、契約時に借主より貸主に支払われ返還されない金銭です。

まとめてお問合せ












































































