トラープランド翠命館 空室一覧
| 所在地 | 武蔵野市境2丁目 | 建築年月 | 2021年1月 |
|---|---|---|---|
| 最寄駅 |
中央本線 武蔵境駅(徒歩3分)
中央本線 三鷹駅(徒歩21分) 中央本線 東小金井駅(徒歩24分) |
||
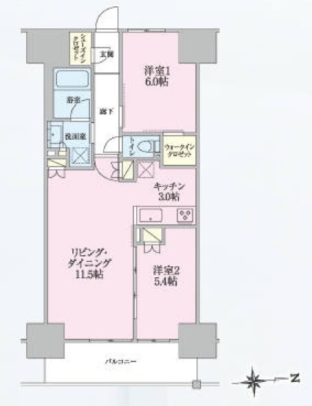
| 総階数 | 14階建て | 総戸数 | 105戸 | 構造 | RC造 |
|---|---|---|---|---|---|
| 周辺施設 |
・武蔵野市立第二小学校 (645m)・武蔵野市立第六中学校 (711m)・栄光乃園幼稚園 (240m)・東京都立武蔵高校 (643m)・西東京市役所田無庁舎 (2,806m)・武蔵野境郵便局 (149m)・武蔵野市立ひと・まち・情報創造館武蔵野プレイス (516m)・多摩信用金庫境支店 (129m)・TAIRAYA武蔵境店 (218m)・セブンイレブン武蔵境駅前店 (302m)・東急百貨店吉祥寺店 (3,631m)・ココカラファイン武蔵境店 (169m)・コーナンPROドイト小金井公園店 (1,085m)・TSUTAYA深大寺店 (1,911m)・すき家武蔵境北口店 (99m)・nonowa武蔵境 (441m)
※小・中学校は近くの学校を表示しています。学校区が異なる場合がありますのでご了承ください |
||||
店舗情報
お電話での物件問い合わせは無料通話で!(直営店のみ)
- 三鷹店
-
無料通話はこちらを
クリックして番号表示! - 中央本線 三鷹駅(徒歩1分)
- Tel: 0422-60-2532
店舗詳細情報
チェックしたお部屋にお問い合わせ
Sorry,Japanese & English only. 日本語・英語のみ対応しております。ご了承ください。
- ※取扱形態はすべて仲介です。 / お部屋の情報は随時更新です / 各種情報と現況に差異がある場合は、現況優先となります。 / 保証会社の審査があります。 / 契約一時金は、契約時に借主より貸主に支払われ返還されない金銭です。

まとめてお問合せ

























































































































