The Terrace NISHIOGIKUBO-A
空室一覧
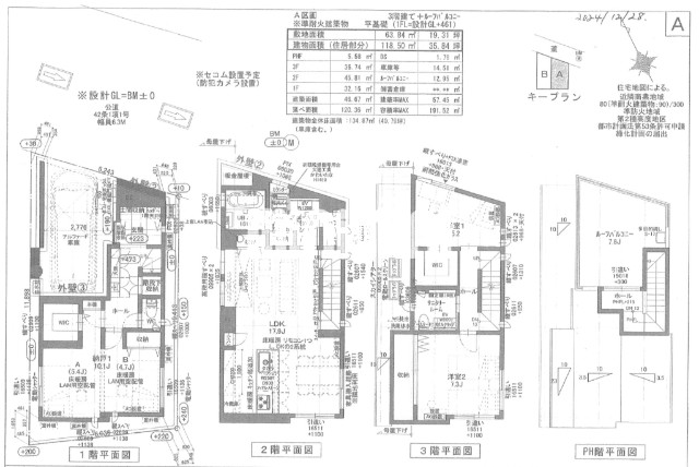
| 所在地 | 杉並区西荻南2丁目 | 建築年月 | 2025年8月 |
|---|---|---|---|
| 最寄駅 |
中央本線 西荻窪駅(徒歩4分)
京王電鉄井の頭線 久我山駅(徒歩21分) 中央本線 荻窪駅(徒歩23分) |
||
| 総階数 | 3階建て | 総戸数 | 1戸 | 構造 | 木造 |
|---|---|---|---|---|---|
| 周辺施設 |
・杉並区立桃井第三小学校 (617m)・杉並区立神明中学校 (984m)・西荻まこと幼稚園 (365m)・私立吉祥女子高校 (1,036m)・杉並西荻南郵便局 (279m)・まつぼっくり緑地 (1,383m)・サミットストア西荻窪駅南店 (124m)・デイリーヤマザキ西荻南店 (188m)・ココカラファイン西荻窪店 (184m)・松のや西荻窪店(マイカリー食堂併設) (214m)
※小・中学校は近くの学校を表示しています。学校区が異なる場合がありますのでご了承ください |
||||
店舗情報
お電話での物件問い合わせは無料通話で!(直営店のみ)
- 新宿店
-
無料通話はこちらを
クリックして番号表示! - 山手線 新宿駅(徒歩2分)
- Tel: 03-3340-3210
店舗詳細情報
チェックしたお部屋にお問い合わせ
Sorry,Japanese & English only. 日本語・英語のみ対応しております。ご了承ください。
- ※取扱形態はすべて仲介です。 / お部屋の情報は随時更新です / 各種情報と現況に差異がある場合は、現況優先となります。 / 保証会社の審査があります。 / 契約一時金は、契約時に借主より貸主に支払われ返還されない金銭です。

まとめてお問合せ




