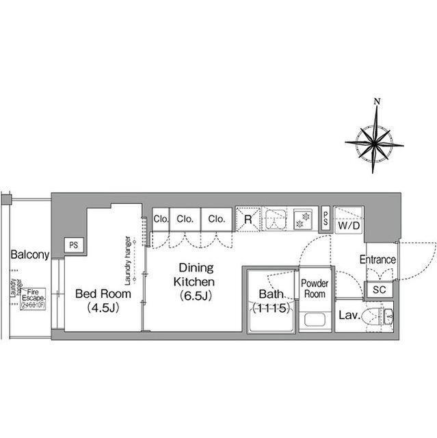
ウエリスアーバン住吉WEST
空室一覧
| 所在地 | 江東区猿江1丁目 | 建築年月 | 2026年3月 |
|---|---|---|---|
| 最寄駅 |
東京メトロ半蔵門線 住吉駅(徒歩9分)
都営地下鉄新宿線 菊川駅(徒歩9分) |
||
| 総階数 | 10階建て | 総戸数 | 57戸 | 構造 | RC造 |
|---|---|---|---|---|---|
| 周辺施設 |
・江東区立東川小学校 (679m)・江東区立深川第一中学校 (536m)・グローバルキッズ森下五丁目園 (318m)・東京都立墨田工科高校 (432m)・江東区役所 (1,894m)・墨田菊川郵便局 (625m)・江東区立こどもプラザ図書館 (559m)・深川警察署 (1,777m)・竪川親水公園 (1,682m)・深川立川病院 (670m)・朝日信用金庫猿江支店 (219m)・肉のハナマサ住吉店 (590m)・ローソン江東猿江一丁目店 (222m)・丸井錦糸町店 (1,563m)・くすりの福太郎住吉2丁目店 (697m)・島忠ホームズ江東猿江店「グリーン・園芸用品・ガーデン資材・自転車」 (745m)・私立レイクランド大学ジャパンキャンパス (2,772m)・TSUTAYA門前仲町店 (2,234m)・無添くら寿司フレスポ住吉店 (483m)
※小・中学校は近くの学校を表示しています。学校区が異なる場合がありますのでご了承ください |
||||
店舗情報
お電話での物件問い合わせは無料通話で!(直営店のみ)
- 森下店
-
無料通話はこちらを
クリックして番号表示! - 都営地下鉄大江戸線 森下駅(徒歩1分)
- Tel: 03-5669-3272
店舗詳細情報
チェックしたお部屋にお問い合わせ
Sorry,Japanese & English only. 日本語・英語のみ対応しております。ご了承ください。
- ※取扱形態はすべて仲介です。 / お部屋の情報は随時更新です / 各種情報と現況に差異がある場合は、現況優先となります。 / 保証会社の審査があります。 / 契約一時金は、契約時に借主より貸主に支払われ返還されない金銭です。

まとめてお問合せ























