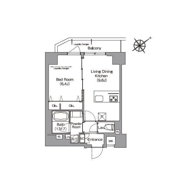
HF押上レジデンス 空室一覧
| 所在地 | 墨田区向島5丁目 | 建築年月 | 2025年3月 |
|---|---|---|---|
| 最寄駅 |
東京メトロ半蔵門線 押上駅(徒歩11分)
都営地下鉄浅草線 押上駅(徒歩11分) 東武伊勢崎・大師線 曳舟駅(徒歩12分) |
||
| 総階数 | 7階建て | 総戸数 | 74戸 | 構造 | RC造 |
|---|---|---|---|---|---|
| 周辺施設 |
・墨田区立言問小学校 (364m)・墨田区立墨田中学校 (366m)・言問幼稚園 (120m)・東京都立本所高校 (371m)・墨田区役所 (1,060m)・向島四郵便局 (437m)・墨田区立ひきふね図書館 (1,369m)・浅草警察署 (1,478m)・堤通公園 (1,201m)・大岩医院 (512m)・朝日信用金庫向島支店 (648m)・コモディイイダ東向島店 (708m)・セブンイレブン向島店 (323m)・松屋浅草 (1,454m)・どらっぐぱぱすとうきょうスカイツリー駅前店 (831m)・コーナンPRO浅草店 (903m)・私立千葉工業大学東京スカイツリータウンキャンパス (1,377m)・ゲオ曳舟店 (1,330m)・しゃぶ葉東向島店 (705m)
※小・中学校は近くの学校を表示しています。学校区が異なる場合がありますのでご了承ください |
||||
店舗情報
お電話での物件問い合わせは無料通話で!(直営店のみ)
- 浅草EKIMISE店
-
無料通話はこちらを
クリックして番号表示! - 東京メトロ銀座線 浅草駅(徒歩1分)
- Tel: 03-5246-3537
店舗詳細情報
- 秋葉原店
-
無料通話はこちらを
クリックして番号表示! - 山手線 秋葉原駅(徒歩1分)
- Tel: 03-5297-3231
店舗詳細情報
- 錦糸町店
-
無料通話はこちらを
クリックして番号表示! - 総武・中央緩行線 錦糸町駅(徒歩2分)
- Tel: 03-3634-3232
店舗詳細情報
チェックしたお部屋にお問い合わせ
Sorry,Japanese & English only. 日本語・英語のみ対応しております。ご了承ください。
- ※取扱形態はすべて仲介です。 / お部屋の情報は随時更新です / 各種情報と現況に差異がある場合は、現況優先となります。 / 保証会社の審査があります。 / 契約一時金は、契約時に借主より貸主に支払われ返還されない金銭です。

まとめてお問合せ






































