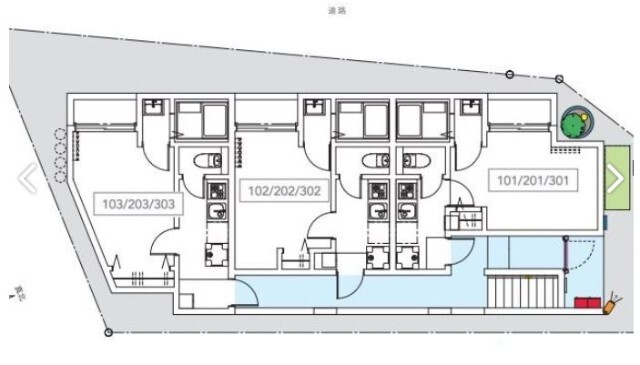
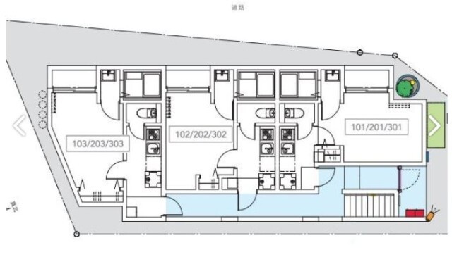
CRASTINE常盤平 空室一覧
| 所在地 | 松戸市常盤平5丁目 | 建築年月 | 2023年2月 |
|---|---|---|---|
| 最寄駅 |
新京成電鉄 五香駅(徒歩6分)
新京成電鉄 常盤平駅(徒歩18分) 武蔵野線 新八柱駅(徒歩32分) |
||
| 総階数 | 3階建て | 総戸数 | 9戸 | 構造 | 木造 |
|---|---|---|---|---|---|
| 周辺施設 |
・松戸市立常盤平第二小学校 (566m)・松戸市立第四中学校 (774m)・はなみずきこども園 (630m)・千葉県立松戸国際高校 (2,054m)・鎌ケ谷市役所 (5,005m)・五香駅前郵便局 (881m)・松戸市立図書館常盤平分館 (963m)・松戸東警察署 (2,864m)・元山2号緑地 (888m)・医療法人社団ときわ会常盤平中央病院 (623m)・朝日信用金庫ときわ平支店 (259m)・ミニコープ常盤平店 (556m)・ファミリーマート常盤平六丁目店 (354m)・プラーレ松戸 (6,361m)・ドラッグストアスマイル松戸五香店 (290m)・ユニディ松戸ときわ平店 (1,161m)・私立麗澤大学 (4,595m)・TSUTAYA柏青葉台店 (2,227m)・珈琲館五香店 (316m)
※小・中学校は近くの学校を表示しています。学校区が異なる場合がありますのでご了承ください |
||||
店舗情報
お電話での物件問い合わせは無料通話で!(直営店のみ)
- 松戸店
-
無料通話はこちらを
クリックして番号表示! - 常磐線 松戸駅(徒歩2分)
- Tel: 047-368-3202
店舗詳細情報
チェックしたお部屋にお問い合わせ
Sorry,Japanese & English only. 日本語・英語のみ対応しております。ご了承ください。
- ※取扱形態はすべて仲介です。 / お部屋の情報は随時更新です / 各種情報と現況に差異がある場合は、現況優先となります。 / 保証会社の審査があります。 / 契約一時金は、契約時に借主より貸主に支払われ返還されない金銭です。

まとめてお問合せ















