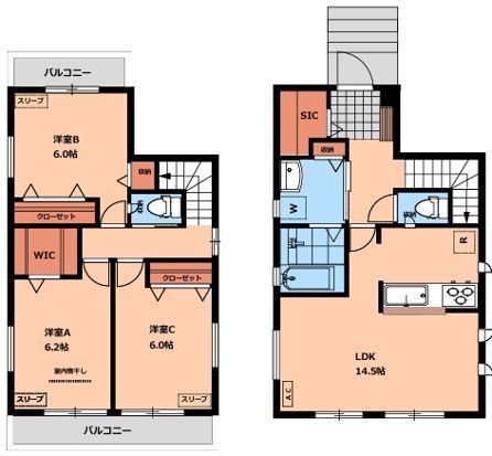
大泉学園町7丁目戸建賃貸住宅
空室一覧
| 所在地 | 練馬区大泉学園町7丁目 | 建築年月 | 2026年1月 |
|---|---|---|---|
| 最寄駅 |
西武池袋・豊島線 大泉学園駅(徒歩37分)
東武東上線 和光市駅(徒歩42分) |
||
| 総階数 | 2階建て | 総戸数 | 4戸 | 構造 | 木造 |
|---|---|---|---|---|---|
| 周辺施設 |
・新座市役所栄出張所 (1,976m)・練馬大泉学園郵便局 (569m)・練馬区立大泉図書館 (1,395m)・朝霞警察署 (2,535m)・長久保緑地 (487m)・医療法人社団健育会ねりま健育会病院 (527m)・朝日信用金庫大泉支店 (734m)・マルエツ大泉学園店 (810m)・ローソン練馬大泉町三丁目店 (467m)・光が丘IMA (3,938m)・スギ薬局大泉学園店 (628m)・ヤマダデンキテックランド大泉学園店PC館 (537m)・私立目白大学国立埼玉病院キャンパス (3,123m)・ゲオ東大泉店 (2,014m)・デニーズ大泉店 (576m)・ワークマンプラス練馬大泉学園店 (851m)
※小・中学校は近くの学校を表示しています。学校区が異なる場合がありますのでご了承ください |
||||
店舗情報
お電話での物件問い合わせは無料通話で!(直営店のみ)
- ひばりヶ丘店
-
無料通話はこちらを
クリックして番号表示! - 西武池袋・豊島線 ひばりケ丘駅(徒歩2分)
- Tel: 042-421-3211
店舗詳細情報
チェックしたお部屋にお問い合わせ
Sorry,Japanese & English only. 日本語・英語のみ対応しております。ご了承ください。
- ※取扱形態はすべて仲介です。 / お部屋の情報は随時更新です / 各種情報と現況に差異がある場合は、現況優先となります。 / 保証会社の審査があります。 / 契約一時金は、契約時に借主より貸主に支払われ返還されない金銭です。

まとめてお問合せ





