大宮土手町7期
空室一覧
| 所在地 | さいたま市大宮区土手町3丁目 | 建築年月 | 2025年9月 |
|---|---|---|---|
| 最寄駅 |
東武野田線 北大宮駅(徒歩2分)
埼玉新都市交通 鉄道博物館(大成)駅(徒歩14分) 東北新幹線 大宮駅(徒歩15分) |
||
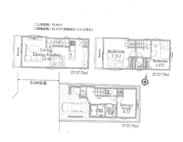
| 総階数 | 3階建て | 総戸数 | 1戸 | 構造 | 木造 |
|---|---|---|---|---|---|
| 周辺施設 |
・さいたま市立大宮北小学校 (672m)・さいたま市立大宮北中学校 (1,151m)・神戸幼稚園 (185m)・埼玉県立大宮中央高校 (1,825m)・さいたま市北区役所日進支所 (2,502m)・大宮郵便局 (473m)・さいたま市立桜木図書館 (1,804m)・大宮西警察署 (3,414m)・氷川緑地 (1,391m)・医療法人ヘブロン会大宮中央総合病院 (779m)・大光銀行大宮支店 (190m)・まいばすけっと大宮宮町3丁目店 (652m)・ファミリーマート北大宮駅前店 (190m)・ルミネ大宮店ルミネ1 (1,244m)・ドラッグストアセキ大成町店 (1,038m)・大川家具大宮店 (431m)・私立日本赤十字看護大学さいたま看護学部 (2,514m)・さきたま書店プラスゲオ大宮大成店 (1,480m)・焼肉きんぐ北大宮店 (152m)
※小・中学校は近くの学校を表示しています。学校区が異なる場合がありますのでご了承ください |
||||
店舗情報
お電話での物件問い合わせは無料通話で!(直営店のみ)
- 大宮東口店
-
無料通話はこちらを
クリックして番号表示! - 京浜東北・根岸線 大宮駅(徒歩2分)
- Tel: 048-649-0032
店舗詳細情報
チェックしたお部屋にお問い合わせ
Sorry,Japanese & English only. 日本語・英語のみ対応しております。ご了承ください。
- ※取扱形態はすべて仲介です。 / お部屋の情報は随時更新です / 各種情報と現況に差異がある場合は、現況優先となります。 / 保証会社の審査があります。 / 契約一時金は、契約時に借主より貸主に支払われ返還されない金銭です。

まとめてお問合せ
























