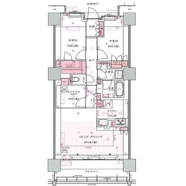
大宮スカイ&スクエアー ザ・タワー 空室一覧
| 所在地 | さいたま市大宮区桜木町2丁目 | 建築年月 | 2024年5月 |
|---|---|---|---|
| 最寄駅 |
京浜東北・根岸線 大宮駅(徒歩5分)
湘南新宿ライン高崎線 大宮駅(徒歩5分) 埼京線 大宮駅(徒歩5分) |
||
| 総階数 | 28階建て | 総戸数 | 522戸 | 構造 | SRC造 |
|---|---|---|---|---|---|
| 周辺施設 |
・大宮桜木町郵便局 (43m)・埼玉りそな銀行大宮西支店 (247m)・ダイエー大宮店 (412m)・セブンイレブンさいたま大栄橋西店 (229m)・大宮マルイ (509m)・ドラッグセイムス大宮桜木店 (312m)・ハンズ大宮店 (410m)
※小・中学校は近くの学校を表示しています。学校区が異なる場合がありますのでご了承ください |
||||
店舗情報
お電話での物件問い合わせは無料通話で!(直営店のみ)
- 大宮西口店
-
無料通話はこちらを
クリックして番号表示! - 京浜東北・根岸線 大宮駅(徒歩2分)
- Tel: 048-645-0032
店舗詳細情報
チェックしたお部屋にお問い合わせ
Sorry,Japanese & English only. 日本語・英語のみ対応しております。ご了承ください。
- ※取扱形態はすべて仲介です。 / お部屋の情報は随時更新です / 各種情報と現況に差異がある場合は、現況優先となります。 / 保証会社の審査があります。 / 契約一時金は、契約時に借主より貸主に支払われ返還されない金銭です。

まとめてお問合せ










