plusM KAKUOZANU 空室一覧
| 所在地 | 名古屋市千種区堀割町2丁目 | 建築年月 | 2022年11月 |
|---|---|---|---|
| 最寄駅 |
地下鉄東山線 覚王山駅(徒歩3分)
地下鉄東山線 池下駅(徒歩6分) 地下鉄東山線 本山駅(徒歩15分) |
||
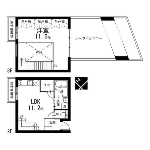
| 総階数 | 3階建て | 総戸数 | 6戸 | 構造 | RC造 |
|---|---|---|---|---|---|
| 周辺施設 |
・名古屋市立田代小学校 (556m)・名古屋市立城山中学校 (1,169m)・椙山女学園大学附属幼稚園 (439m)・パレマルシェ池下店 (500m)・成城石井名古屋セントラルガーデン店 (1,137m)・私立椙山女学園中学校 (581m)・名古屋市昭和区役所 (2,934m)・名古屋市千種区役所 (2,868m)・名古屋覚王山郵便局 (167m)・私立椙山女学園高校 (732m)・私立椙山女学園大学附属小学校 (327m)・愛知学院大学歯学薬学図書館情報センター (1,159m)・セブンイレブン名古屋覚王山店 (102m)・千種警察署 (365m)・医療法人蜂友会はちや整形外科病院 (564m)・名古屋市立大学医学部附属東部医療センター (1,686m)・三菱UFJ銀行覚王山支店 (30m)・フランテロゼ覚王山 (294m)・名古屋三越星ヶ丘店 (3,407m)
※小・中学校は近くの学校を表示しています。学校区が異なる場合がありますのでご了承ください |
||||
店舗情報
お電話での物件問い合わせは無料通話で!(直営店のみ)
- 池下店
-
無料通話はこちらを
クリックして番号表示! - 地下鉄東山線 池下駅(徒歩1分)
- Tel: 052-761-0061
店舗詳細情報
チェックしたお部屋にお問い合わせ
Sorry,Japanese & English only. 日本語・英語のみ対応しております。ご了承ください。
- ※取扱形態はすべて仲介です。 / お部屋の情報は随時更新です / 各種情報と現況に差異がある場合は、現況優先となります。 / 保証会社の審査があります。 / 契約一時金は、契約時に借主より貸主に支払われ返還されない金銭です。

まとめてお問合せ




































































