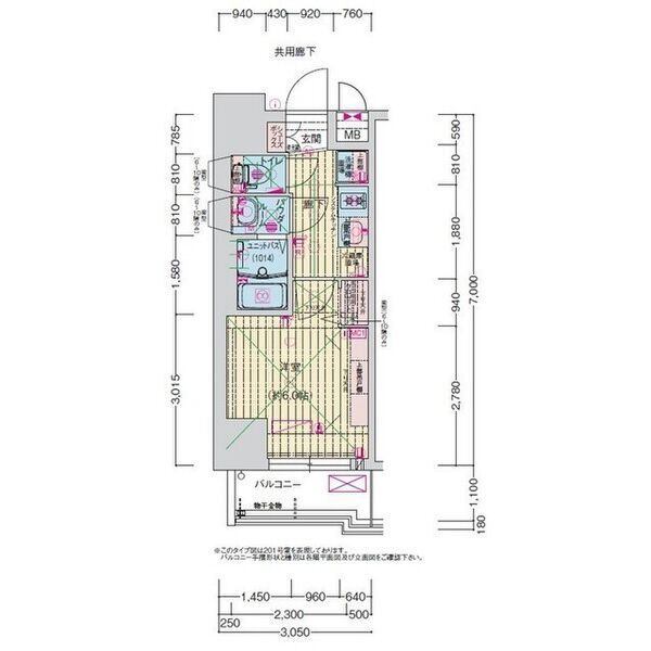
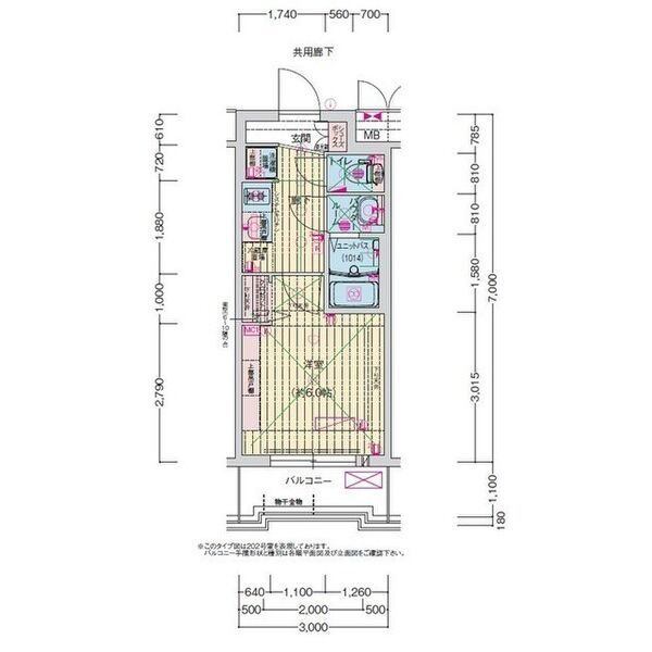
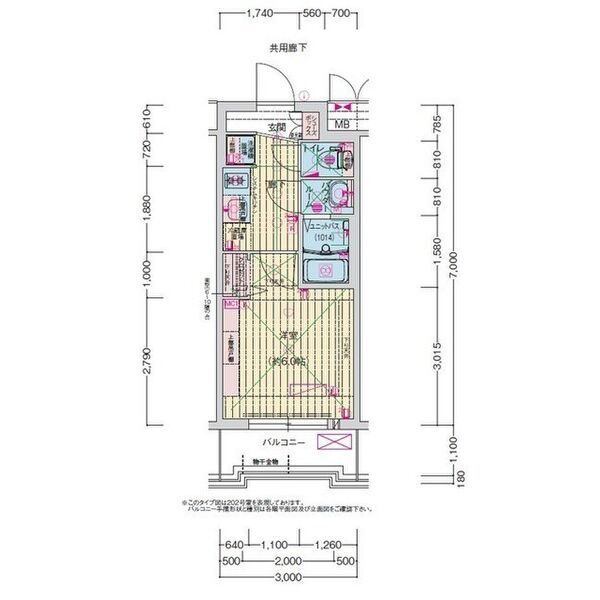
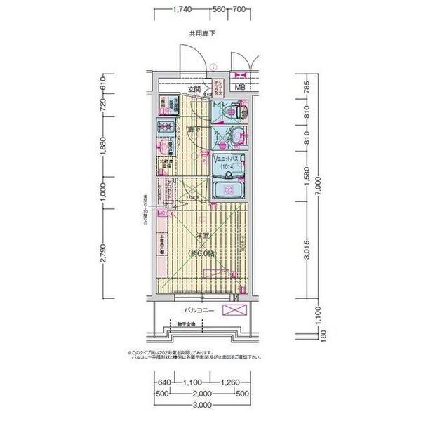
プレサンス高畑ルミア
空室一覧
| 所在地 | 名古屋市中川区高畑1丁目 | 建築年月 | 2026年2月 |
|---|---|---|---|
| 最寄駅 |
地下鉄東山線 高畑駅(徒歩3分)
あおなみ線 荒子駅(徒歩9分) 地下鉄東山線 八田駅(徒歩13分) |
||
| 総階数 | 13階建て | 総戸数 | 57戸 | 構造 | RC造 |
|---|---|---|---|---|---|
| 周辺施設 |
・名古屋市立野田小学校 (1,148m)・名古屋市立一柳中学校 (1,392m)・たかばた保育園 (336m)・名古屋荒子郵便局 (284m)・名古屋市中川図書館 (813m)・医療法人純正会名古屋西病院 (401m)・フィールアイアイプラザ (1,040m)・ミニストップ高畑駅前店 (302m)・スギ薬局高畑店 (144m)・ゲオ名古屋高畑店 (1,017m)・無添くら寿司名古屋高畑店 (340m)・フィールアイアイプラザ (1,040m)
※小・中学校は近くの学校を表示しています。学校区が異なる場合がありますのでご了承ください |
||||
店舗情報
お電話での物件問い合わせは無料通話で!(直営店のみ)
- 高畑店
-
無料通話はこちらを
クリックして番号表示! - 地下鉄東山線 高畑駅(徒歩1分)
- Tel: 052-363-3200
店舗詳細情報
チェックしたお部屋にお問い合わせ
Sorry,Japanese & English only. 日本語・英語のみ対応しております。ご了承ください。
- ※取扱形態はすべて仲介です。 / お部屋の情報は随時更新です / 各種情報と現況に差異がある場合は、現況優先となります。 / 保証会社の審査があります。 / 契約一時金は、契約時に借主より貸主に支払われ返還されない金銭です。

まとめてお問合せ







































































































































































































































































































































































































































































































































































































































































































































































































































































































































