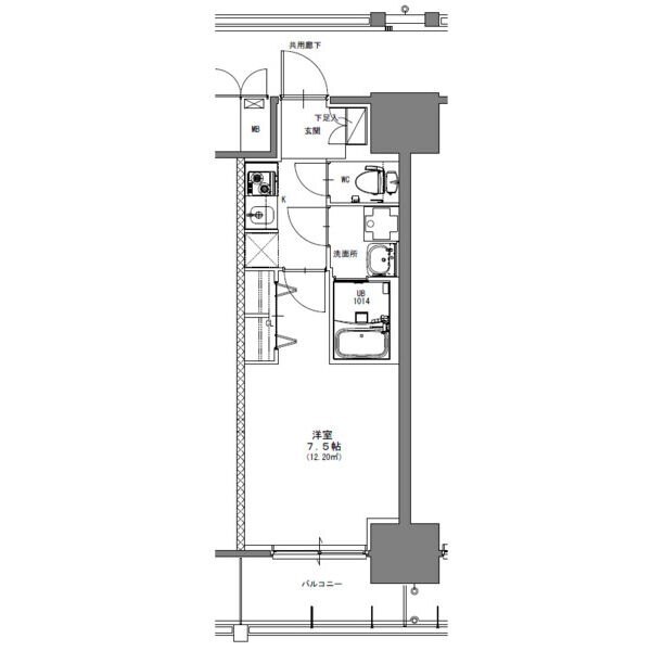
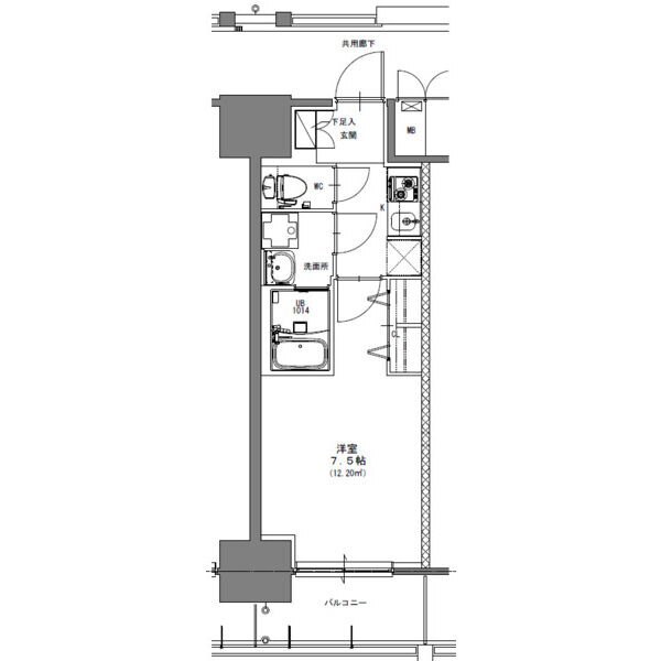
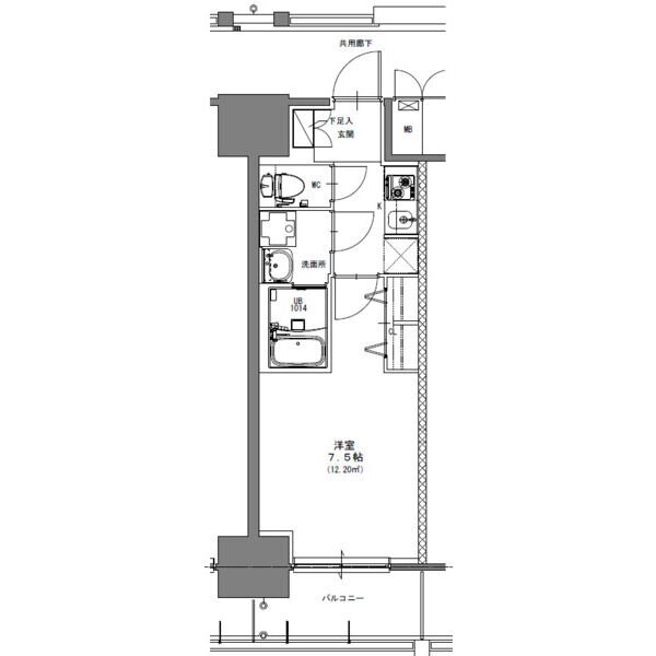
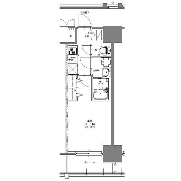
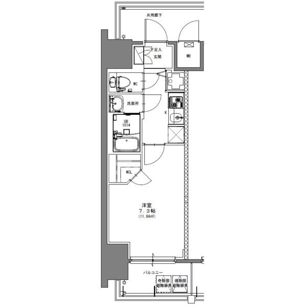
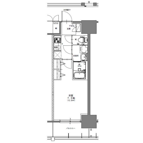
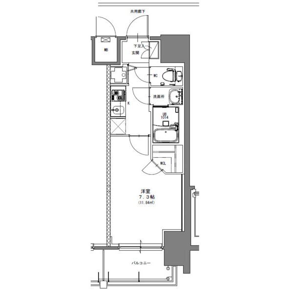
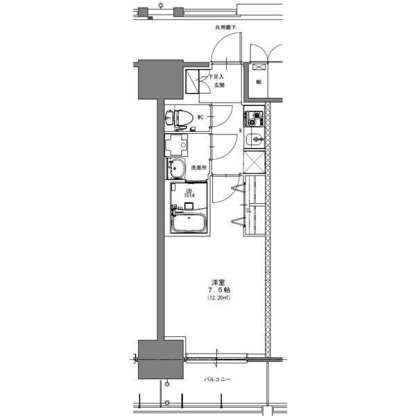
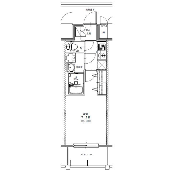
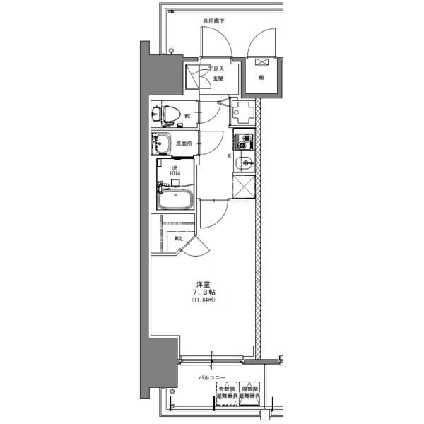
S-RESIDENCE浅間町駅前axial
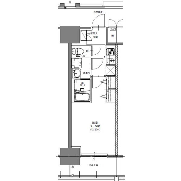
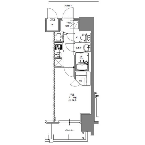
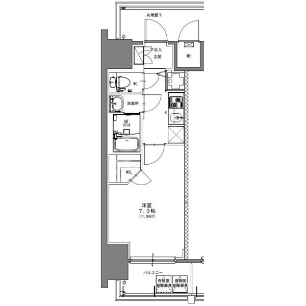
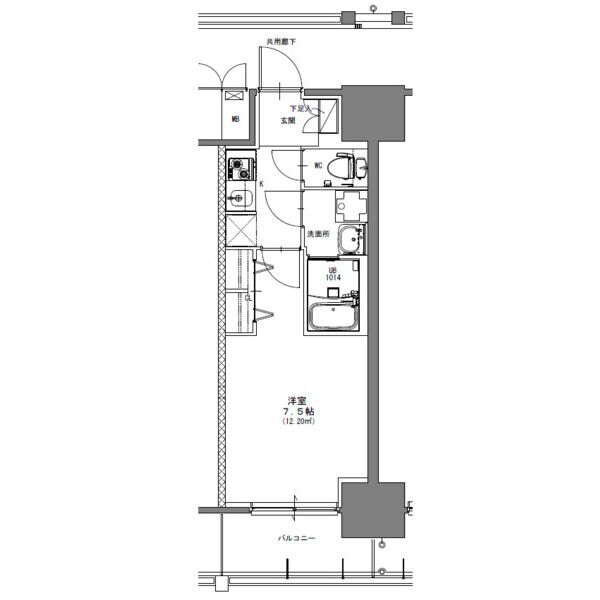
空室一覧
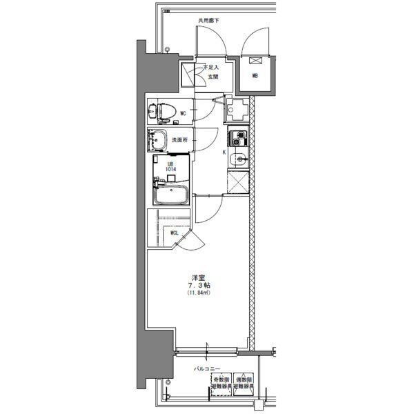
| 所在地 | 名古屋市西区新道1丁目 | 建築年月 | 2025年8月 |
|---|---|---|---|
| 最寄駅 |
地下鉄鶴舞線 浅間町駅(徒歩2分)
地下鉄鶴舞線 浄心駅(徒歩16分) 地下鉄桜通線 国際センター駅(徒歩16分) |
||
| 総階数 | 15階建て | 総戸数 | 84戸 | 構造 | RC造 |
|---|---|---|---|---|---|
| 周辺施設 |
・名古屋市西区役所 (760m)・フィール花の木店 (622m)・ファミリーマート浅間町駅前店 (198m)・ジェイアール名古屋タカシマヤ (2,041m)・B&Dドラッグストア浅間町店 (239m)・ゲオ名古屋亀島店 (1,888m)・マクドナルド城西店 (296m)・金シャチ横丁義直ゾーン (1,034m)
※小・中学校は近くの学校を表示しています。学校区が異なる場合がありますのでご了承ください |
||||
店舗情報
お電話での物件問い合わせは無料通話で!(直営店のみ)
- 浄心店
-
無料通話はこちらを
クリックして番号表示! - 地下鉄鶴舞線 浄心駅(徒歩1分)
- Tel: 052-531-3451
店舗詳細情報
チェックしたお部屋にお問い合わせ
Sorry,Japanese & English only. 日本語・英語のみ対応しております。ご了承ください。
- ※取扱形態はすべて仲介です。 / お部屋の情報は随時更新です / 各種情報と現況に差異がある場合は、現況優先となります。 / 保証会社の審査があります。 / 契約一時金は、契約時に借主より貸主に支払われ返還されない金銭です。

まとめてお問合せ

















































































































































































































































































































































































































































































































































































































































































































































































































































































































