大阪府大阪市淀川区東三国1丁目 1LDK 34.54m2 物件詳細情報
| 沿線・駅 所在地 |
賃料 共益費(管理費) |
敷金 礼金 |
間取り 専有面積 |
種別 建築年月日 |
|
|---|---|---|---|---|---|
|
御堂筋線 東三国駅(徒歩1分)
大阪府大阪市淀川区東三国1丁目 |
119,000円 12,000円 |
- 1.0ヶ月 |
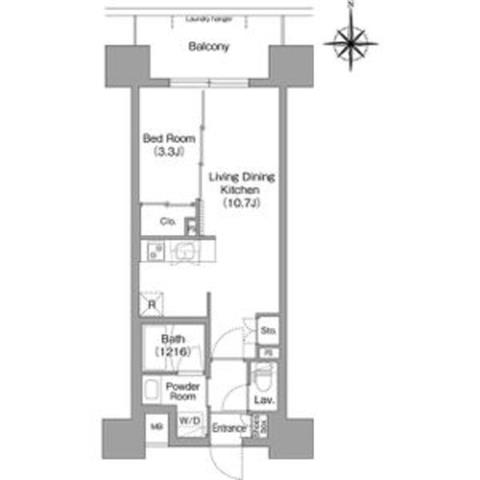
1LDK 34.54m2 |
マンション 2026年4月 |
|
この物件のお問い合わせ番号 5156-2710053596-0015
外観・間取り図
情報登録日:2026/03/16 情報更新日:2026/03/18 次回更新予定日:2026/03/25
設備
| 部屋設備 | TV付モニターホン / 下駄箱 / ガスコンロ(コンロ(2口)) / エアコン / フローリング / バルコニー / ウォームレット / シャワー / 浴室乾燥機 / 洗髪洗面化粧台 / 追焚き / 室内洗濯機置場 / バストイレ別 / クロゼット / 洗面所独立 / システムキッチン |
|---|---|
| 建物設備 | CATV / ネット環境(光ファイバ対応) / ペット可 / 宅配ボックス / 駐輪場 / オートロック / エレベータ / バイク置き場 / 巡回管理 / 敷地内ゴミ置き場 |
物件詳細
| 交通機関 | ・御堂筋線 東三国駅(徒歩1分) ・東海道本線 東淀川駅(徒歩8分) ・御堂筋線 新大阪駅(徒歩10分)・東海道本線 新大阪駅(徒歩12分) | ||||
|---|---|---|---|---|---|
| 構造 | RC造 | 方位 | 北 | 階数/総階数 | 3階/15階建て |
| 総戸数 | 72戸 | 駐車場 | 24,200円 | 入居日 | 2026年4月上旬 |
| 環境 | セブンイレブン大阪東三国駅北口店 (211m) / ショッピングプラザ新大阪 (203m) / スギ薬局東三国駅前店 (200m) / スマイル淀川 (469m) / ファミリーマート×イズミヤ東三国四丁目店 (508m) | ||||
| 内装代 | - | 償却 | - | 保険 | 損保要 |
| 更新料 | 30,000円 | 水道料金等預かり金 | - | 特記事項 | - |
| 飲用水 | 公営 | ガス | 都市 | 排水 | 公共下水 |
| 給湯方式 | - | ||||
この物件のお問い合わせ番号 5156-2710053596-0015
類似物件一覧
-
13.4万円
-
1.0ヶ月
-
11.4万円
-
-
1LDK
大阪府大阪市淀川区宮原1丁目 -
10.7万円
-
-
1LDK
大阪府大阪市淀川区宮原5丁目 -
9.0万円
-
-
1LDK
大阪府大阪市淀川区加島1丁目 -
8.7万円
-
200,000円
1LDK
大阪府大阪市淀川区宮原1丁目 -
11.0万円
100,000円
350,000円
1LDK
大阪府大阪市淀川区西中島1丁目 -
9.5万円
-
1.0ヶ月
1LDK
大阪府大阪市淀川区宮原2丁目 -
11.4万円
-
-
1LDK
大阪府大阪市淀川区西三国1丁目 -
12.9万円
-
-
1LDK
大阪府大阪市淀川区三国本町1丁目 -
12.9万円
141,000円
-
1LDK
大阪府大阪市淀川区東三国5丁目 -
10.1万円
-
-
1LDK
大阪府大阪市淀川区十三東1丁目 -
10.0万円
-
260,000円
1LDK
大阪府大阪市淀川区西中島6丁目
店舗情報
お電話での物件問い合わせは無料通話で!(直営店のみ)
5156-2710053596-0015
- 三重法人部
- 059-356-8041
- 三重県四日市市鵜の森1丁目1-19太平洋鵜の森ビル5階
このお部屋にお問い合わせ
あわせて店舗への来店を希望のお客様は、上の希望店舗の来店予約フォームをご利用ください(直営店舗のみ)
Sorry,Japanese & English only. 日本語・英語のみ対応しております。ご了承ください。
- ※取扱形態は仲介です。 / お部屋の情報は随時更新です / 各種情報と現況に差異がある場合は、現況優先となります。 / 保証会社の審査があります。 / 契約一時金は、契約時に借主より貸主に支払われ返還されない金銭です。

この物件のかんたんお問合せフォーム
お電話でお問合せ(法人用)


大阪府大阪市淀川区宮原1丁目