大阪府大阪市東淀川区西淡路1丁目 1DK 25.55m2 物件詳細情報
| 沿線・駅 所在地 |
賃料 共益費(管理費) |
敷金 礼金 |
間取り 専有面積 |
種別 建築年月日 |
|
|---|---|---|---|---|---|
|
東海道本線 東淀川駅(徒歩1分)
大阪府大阪市東淀川区西淡路1丁目 |
84,000円 6,900円 |
- - |
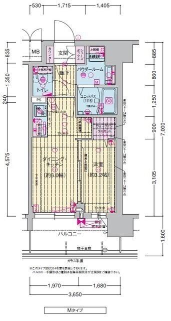
1DK 25.55m2 |
マンション 2026年3月 |
|
この物件のお問い合わせ番号 5156-2710053537-0317
外観・間取り図
情報登録日:2026/03/03 情報更新日:2026/03/06 次回更新予定日:2026/03/13
設備
| 部屋設備 | TV付モニターホン / 下駄箱 / ガスコンロ(コンロ(2口)) / エアコン / フローリング / ウォークインクロゼット / バルコニー / ウォームレット / シャワー / 浴室乾燥機 / 洗髪洗面化粧台 / 室内洗濯機置場 / バストイレ別 / 洗面所独立 / システムキッチン |
|---|---|
| 建物設備 | BSアンテナ / CATV / ネット環境(光ファイバ対応) / 宅配ボックス / 駐輪場 / オートロック / エレベータ / バイク置き場 / 敷地内ゴミ置き場 |
物件詳細
| 交通機関 | ・東海道本線 東淀川駅(徒歩1分) ・御堂筋線 新大阪駅(徒歩7分) ・御堂筋線 東三国駅(徒歩10分)・東海道本線 新大阪駅(徒歩6分) | ||||
|---|---|---|---|---|---|
| 構造 | RC造 | 方位 | 北 | 階数/総階数 | 5階/15階建て |
| 総戸数 | 257戸 | 駐車場 | 18,000円 | 入居日 | 相談 |
| 環境 | セブンイレブン大阪東淀川駅前店 (298m) / ショッピングプラザ新大阪 (772m) / スーパーかまだ西淡路店 (255m) / スマイル淀川 (537m) / バロー 淡路店 (874m) | ||||
| 内装代 | - | 償却 | - | 保険 | 損保要 |
| 更新料 | 11,000円 | 水道料金等預かり金 | - | 特記事項 | - |
| 飲用水 | 公営 | ガス | 都市 | 排水 | 公共下水 |
| 給湯方式 | - | ||||
この物件のお問い合わせ番号 5156-2710053537-0317
類似物件一覧
-
7.4万円
-
1.0ヶ月
-
9.1万円
-
1.0ヶ月
1DK
大阪府大阪市東淀川区東中島4丁目 -
6.8万円
-
1.0ヶ月
1K
大阪府大阪市東淀川区菅原1丁目 -
8.7万円
-
1.0ヶ月
1LDK
大阪府大阪市東淀川区上新庄3丁目 -
6.4万円
-
1.0ヶ月
1K
大阪府大阪市東淀川区東中島1丁目 -
7.1万円
-
1.0ヶ月
1K
大阪府大阪市東淀川区瑞光1丁目 -
6.4万円
-
1.0ヶ月
1K
大阪府大阪市東淀川区東中島4丁目 -
9.0万円
-
1.0ヶ月
1DK
大阪府大阪市東淀川区東中島4丁目 -
6.4万円
-
1.0ヶ月
1K
大阪府大阪市東淀川区柴島2丁目 -
9.0万円
-
1.0ヶ月
1DK
大阪府大阪市東淀川区東中島4丁目 -
7.5万円
-
1.0ヶ月
1K
大阪府大阪市東淀川区東中島4丁目 -
8.2万円
-
1.0ヶ月
1K
大阪府大阪市東淀川区東淡路4丁目
店舗情報
お電話での物件問い合わせは無料通話で!(直営店のみ)
5156-2710053537-0317
- FC阪急淡路駅前店
- 阪急電鉄京都線 淡路駅(徒歩3分)
- Tel: 06-4809-2200
- 店舗詳細情報
このお部屋にお問い合わせ
あわせて店舗への来店を希望のお客様は、上の希望店舗の来店予約フォームをご利用ください(直営店舗のみ)
Sorry,Japanese & English only. 日本語・英語のみ対応しております。ご了承ください。
- ※取扱形態は仲介です。 / お部屋の情報は随時更新です / 各種情報と現況に差異がある場合は、現況優先となります。 / 保証会社の審査があります。 / 契約一時金は、契約時に借主より貸主に支払われ返還されない金銭です。

この物件のかんたんお問合せフォーム
お電話でお問合せ


大阪府大阪市東淀川区東中島4丁目