大阪府大阪市淀川区西三国4丁目 1LDK 30.80m2 物件詳細情報
| 沿線・駅 所在地 |
賃料 共益費(管理費) |
敷金 礼金 |
間取り 専有面積 |
種別 建築年月日 |
|
|---|---|---|---|---|---|
|
阪急電鉄宝塚線 三国駅(徒歩4分)
大阪府大阪市淀川区西三国4丁目 |
116,000円 12,000円 |
- - |
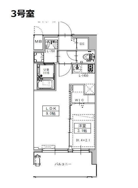
1LDK 30.80m2 |
マンション 2024年3月 |
|
この物件のお問い合わせ番号 5156-2710053032-0133
外観・間取り図
情報登録日:2026/03/12 情報更新日:2026/03/15 次回更新予定日:2026/03/22
設備
| 部屋設備 | TV付モニターホン / 下駄箱 / ガスコンロ(コンロ(2口)) / エアコン / フローリング / ウォークインクロゼット / バルコニー / ウォームレット / シャワー / 浴室乾燥機 / 洗髪洗面化粧台 / 室内洗濯機置場 / バストイレ別 / 洗面所独立 / システムキッチン |
|---|---|
| 建物設備 | ネット環境(光ファイバ対応) / ペット可 / 宅配ボックス / 駐輪場 / オートロック / エレベータ / 巡回管理 / 敷地内ゴミ置き場 |
物件詳細
| 交通機関 | ・阪急電鉄宝塚線 三国駅(徒歩4分) ・御堂筋線 東三国駅(徒歩20分) ・東海道本線 新大阪駅(徒歩30分)・御堂筋線 新大阪駅(徒歩28分) | ||||
|---|---|---|---|---|---|
| 構造 | RC造 | 方位 | 南東 | 階数/総階数 | 3階/13階建て |
| 総戸数 | 92戸 | 駐車場 | 19,800円 | 入居日 | 2026年4月下旬 |
| 環境 | ファミリーマート西三国四丁目店 (50m) / Foods Market satake新大阪店 (667m) / イオンタウン淀川三国 (889m) / セブンイレブン大阪西三国3丁目店 (147m) / フレスコ三国店 (295m) | ||||
| 内装代 | - | 償却 | - | 保険 | 損保要 |
| 更新料 | 1.0ヶ月 | 水道料金等預かり金 | - | 特記事項 | - |
| 飲用水 | 公営 | ガス | 都市 | 排水 | 公共下水 |
| 給湯方式 | - | ||||
この物件のお問い合わせ番号 5156-2710053032-0133
類似物件一覧
-
10.4万円
-
-
-
13.3万円
145,000円
-
1LDK
大阪府大阪市淀川区東三国5丁目 -
13.6万円
-
1.0ヶ月
1LDK
大阪府大阪市淀川区宮原5丁目 -
9.8万円
1.0ヶ月
-
1LDK
大阪府大阪市淀川区東三国6丁目 -
9.5万円
-
-
1DK
大阪府大阪市淀川区木川東4丁目 -
10.7万円
-
-
1LDK
大阪府大阪市淀川区宮原5丁目 -
9.1万円
-
1.0ヶ月
1DK
大阪府大阪市淀川区宮原2丁目 -
12.6万円
-
-
1LDK
大阪府大阪市淀川区三国本町1丁目 -
12.6万円
-
-
1LDK
大阪府大阪市淀川区三国本町1丁目 -
11.9万円
-
-
1LDK
大阪府大阪市淀川区十八条2丁目 -
10.7万円
116,000円
232,000円
1LDK
大阪府大阪市淀川区三国本町1丁目 -
9.2万円
-
1.0ヶ月
1DK
大阪府大阪市淀川区西中島2丁目
店舗情報
お電話での物件問い合わせは無料通話で!(直営店のみ)
5156-2710053032-0133
- FC阪急淡路駅前店
- 阪急電鉄京都線 淡路駅(徒歩3分)
- Tel: 06-4809-2200
- 店舗詳細情報
このお部屋にお問い合わせ
あわせて店舗への来店を希望のお客様は、上の希望店舗の来店予約フォームをご利用ください(直営店舗のみ)
Sorry,Japanese & English only. 日本語・英語のみ対応しております。ご了承ください。
- ※取扱形態は仲介です。 / お部屋の情報は随時更新です / 各種情報と現況に差異がある場合は、現況優先となります。 / 保証会社の審査があります。 / 契約一時金は、契約時に借主より貸主に支払われ返還されない金銭です。

この物件のかんたんお問合せフォーム
お電話でお問合せ


大阪府大阪市淀川区木川東3丁目