MODERN EIGHT 高宮lieto 物件詳細情報
| 沿線・駅 所在地 |
賃料 共益費(管理費) |
敷金 礼金 |
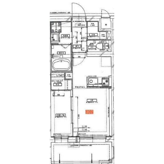
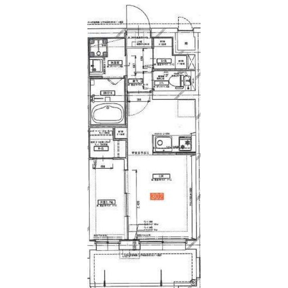
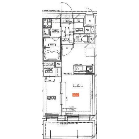
間取り 専有面積 |
種別 建築年月日 |
|
|---|---|---|---|---|---|
|
西鉄天神大牟田線 高宮駅(徒歩19分)
福岡県福岡市南区大池1丁目 |
82,000円 6,000円 |
- - |
1LDK 29.80m2 |
マンション 2026年3月 |
|
この物件のお問い合わせ番号 5148-4010009407-0002

- 福岡市立大池小学校

- 福岡市立野間中学校

- 井口野間病院

- グリーンコープ生協ふくおか野間店

- セブンイレブン福岡野間大池店
設備
| 部屋設備 | TV付モニターホン / 下駄箱 / ガスコンロ(コンロ(3口)) / フローリング / バルコニー / シャワー / 洗髪洗面化粧台 / 追焚き / 室内洗濯機置場 / 保証人不要 / 角部屋 / 2人入居 / シャワー付トイレ / クロゼット / 洗面所独立 / カウンターキッチン / システムキッチン |
|---|---|
| 建物設備 | エレベータ / 宅配ボックス / ペット可 / ネット利用料無料 / 防犯カメラ |
物件詳細
| 交通機関 | ・西鉄天神大牟田線 高宮駅(徒歩19分) ・西鉄天神大牟田線 大橋駅(徒歩25分) ・西鉄天神大牟田線 西鉄平尾駅(徒歩31分) | ||||
|---|---|---|---|---|---|
| 構造 | RC造 | 方位 | 南 | 階数/総階数 | 2階/10階建て |
| 総戸数 | 16戸 | 駐車場 | - | 入居日 | 2026年3月上旬 |
| 環境 | グリーンコープ生協ふくおか野間店 (173m) / 福岡市立大池小学校 (370m) / 福岡市立野間中学校 (1,043m) / 井口野間病院 (624m) / セブンイレブン福岡野間大池店 (97m) | ||||
| 内装代 | - | 償却 | - | 保険 | 損保要 |
| 更新料 | - | 水道料金等預かり金 | - | 特記事項 | - |
| 飲用水 | - | ガス | - | 排水 | - |
| 給湯方式 | - | ||||
その他の費用
| 毎月 | 町内会費:400円/安心サポート(月払い):880円 |
|---|---|
| 一時 | 消毒料:16,500円/事務手数料:11,000円/その他費用(契約時):18,700円 |
この物件のお問い合わせ番号 5148-4010009407-0002
類似物件一覧
-
10.3万円
-
206,000円
-
9.5万円
-
190,000円
1LDK
福岡県福岡市南区清水4丁目 -
10.1万円
-
202,000円
1LDK
福岡県福岡市南区那の川2丁目 -
7.4万円
-
148,000円
1LDK
福岡県福岡市南区井尻3丁目 -
10.5万円
-
210,000円
1LDK
福岡県福岡市南区清水4丁目 -
7.9万円
-
158,000円
1LDK
福岡県福岡市南区中尾1丁目 -
7.1万円
-
71,000円
1LDK
福岡県福岡市南区高木2丁目 -
10.5万円
-
210,000円
1LDK
福岡県福岡市南区清水4丁目 -
8.7万円
-
87,000円
1LDK
福岡県福岡市南区玉川町 -
9.4万円
-
188,000円
1LDK
福岡県福岡市南区那の川2丁目 -
10.2万円
-
204,000円
1LDK
福岡県福岡市南区清水4丁目 -
10.2万円
-
204,000円
1LDK
福岡県福岡市南区那の川2丁目
店舗情報
お電話での物件問い合わせは無料通話で!(直営店のみ)
5148-4010009407-0002
- FC高宮店
- 西鉄天神大牟田線 高宮駅(徒歩2分)
- Tel: 092-532-3211
- 店舗詳細情報
このお部屋にお問い合わせ
あわせて店舗への来店を希望のお客様は、上の希望店舗の来店予約フォームをご利用ください(直営店舗のみ)
Sorry,Japanese & English only. 日本語・英語のみ対応しております。ご了承ください。
- ※取扱形態は仲介です。 / お部屋の情報は随時更新です / 各種情報と現況に差異がある場合は、現況優先となります。 / 保証会社の審査があります。 / 契約一時金は、契約時に借主より貸主に支払われ返還されない金銭です。

この物件のかんたんお問合せフォーム
お電話でお問合せ
外観・間取り図
















福岡県福岡市南区清水4丁目