福岡県福岡市南区大橋3丁目 1LDK 30.88m2 物件詳細情報
| 沿線・駅 所在地 |
賃料 共益費(管理費) |
敷金 礼金 |
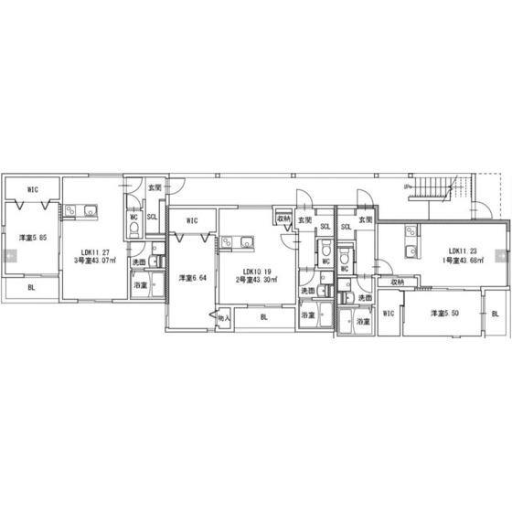
間取り 専有面積 |
種別 建築年月日 |
|
|---|---|---|---|---|---|
|
西鉄天神大牟田線 大橋駅(徒歩11分)
福岡県福岡市南区大橋3丁目 |
78,000円 8,000円 |
- 117,000円 |
1LDK 30.88m2 |
マンション 2026年2月 |
|
この物件のお問い合わせ番号 5148-4010009346-0009

- マックスバリュエクスプレス大橋店

- セブンイレブン福岡大橋2丁目店

- 福岡三宅郵便局

- ドラッグ新生堂大橋店

- カルディコーヒーファームレイリア
設備
| 部屋設備 | TV付モニターホン / エアコン / 冷房 / 暖房 / フローリング / ウォークインクロゼット / バルコニー / シャワー / 浴室乾燥機 / 追焚き / 室内洗濯機置場 / バストイレ別 / コンロ(コンロ(2口)) / シャワー付トイレ / クロゼット / 洗面所独立 / カウンターキッチン |
|---|---|
| 建物設備 | エレベータ / オートロック / 駐輪場 / 宅配ボックス / ペット可 / デザイナーズマンション / BSアンテナ / CSアンテナ / ネット利用料無料 / 防犯カメラ |
物件詳細
| 交通機関 | ・西鉄天神大牟田線 大橋駅(徒歩11分) ・西鉄天神大牟田線 井尻駅(徒歩18分) ・鹿児島本線 竹下駅(徒歩25分) | ||||
|---|---|---|---|---|---|
| 構造 | RC造 | 方位 | 北東 | 階数/総階数 | 8階/10階建て |
| 総戸数 | - | 駐車場 | - | 入居日 | 2026年3月中旬 |
| 環境 | ドラッグ新生堂大橋店 (502m) / マックスバリュエクスプレス大橋店 (481m) / セブンイレブン福岡大橋2丁目店 (362m) / 福岡三宅郵便局 (898m) / カルディコーヒーファームレイリア | ||||
| 内装代 | - | 償却 | - | 保険 | 損保要 |
| 更新料 | - | 水道料金等預かり金 | - | 特記事項 | - |
| 飲用水 | - | ガス | - | 排水 | - |
| 給湯方式 | - | ||||
この物件のお問い合わせ番号 5148-4010009346-0009
類似物件一覧
-
6.6万円
-
66,000円
-
7.8万円
-
77,500円
1LDK
福岡県福岡市南区横手南町 -
8.1万円
-
-
1LDK+1納戸
福岡県福岡市南区曰佐1丁目 -
8.6万円
-
172,000円
1LDK
福岡県福岡市南区大橋3丁目 -
8.1万円
-
162,000円
1LDK
福岡県福岡市南区玉川町 -
7.4万円
-
148,000円
1LDK
福岡県福岡市南区井尻3丁目 -
7.9万円
-
79,000円
1LDK
福岡県福岡市南区井尻1丁目 -
9.6万円
-
192,000円
1LDK
福岡県福岡市南区清水4丁目 -
9.9万円
-
198,000円
1LDK
福岡県福岡市南区清水4丁目 -
9.3万円
-
186,000円
1LDK
福岡県福岡市南区那の川2丁目 -
7.1万円
-
71,000円
1LDK
福岡県福岡市南区野間1丁目 -
7.8万円
-
195,000円
1LDK
福岡県福岡市南区那の川2丁目
店舗情報
お電話での物件問い合わせは無料通話で!(直営店のみ)
5148-4010009346-0009
- FC高宮店
- 西鉄天神大牟田線 高宮駅(徒歩2分)
- Tel: 092-532-3211
- 店舗詳細情報
このお部屋にお問い合わせ
あわせて店舗への来店を希望のお客様は、上の希望店舗の来店予約フォームをご利用ください(直営店舗のみ)
Sorry,Japanese & English only. 日本語・英語のみ対応しております。ご了承ください。
- ※取扱形態は仲介です。 / お部屋の情報は随時更新です / 各種情報と現況に差異がある場合は、現況優先となります。 / 保証会社の審査があります。 / 契約一時金は、契約時に借主より貸主に支払われ返還されない金銭です。

この物件のかんたんお問合せフォーム
お電話でお問合せ
外観・間取り図















福岡県福岡市南区高木2丁目