大阪府大阪市住之江区浜口西3丁目 3LDK 70.85m2 物件詳細情報
| 沿線・駅 所在地 |
賃料 共益費(管理費) |
敷金 礼金 |
間取り 専有面積 |
種別 建築年月日 |
|
|---|---|---|---|---|---|
|
南海電鉄南海本線 住ノ江駅(徒歩7分)
大阪府大阪市住之江区浜口西3丁目 |
125,000円 - |
- 300,000円 |
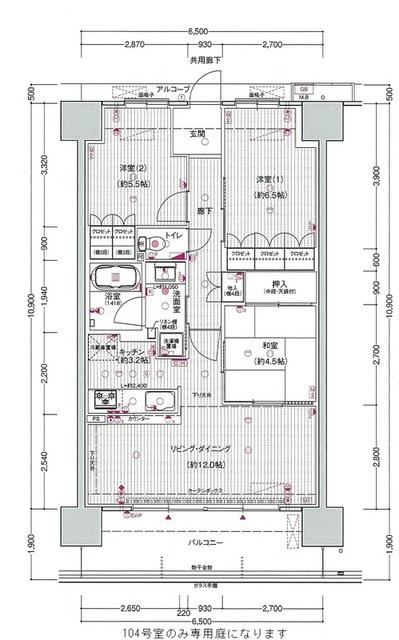
3LDK 70.85m2 |
マンション 2015年6月 |
|
この物件のお問い合わせ番号 5107-2710039146-0001
外観・間取り図
情報登録日:2026/04/06 情報更新日:2026/04/09 次回更新予定日:2026/04/16
設備
| 部屋設備 | TV付モニターホン / インターホン / ガスコンロ(コンロ(3口)) / バルコニー / シャワー / 浴室乾燥機 / 洗髪洗面化粧台 / 追焚き / 室内洗濯機置場 / バストイレ別 / 2人入居 / クロゼット2ヶ所 / クロゼット / 洗面所独立 / カウンターキッチン / システムキッチン |
|---|---|
| 建物設備 | エレベータ / 駐輪場 / 宅配ボックス / ペット可 / BSアンテナ / CSアンテナ / ネット環境(なし) / バイク置き場 / 巡回管理 / 敷地内ゴミ置き場 |
物件詳細
| 交通機関 | ・南海電鉄南海本線 住ノ江駅(徒歩7分) ・南海電鉄南海本線 住吉大社駅(徒歩14分) ・四つ橋線 住之江公園駅(徒歩15分)・南海電鉄高野線 沢ノ町駅(徒歩19分) | ||||
|---|---|---|---|---|---|
| 構造 | RC造 | 方位 | 南 | 階数/総階数 | 2階/13階建て |
| 総戸数 | 32戸 | 駐車場 | - | 入居日 | 2026年5月下旬 |
| 環境 | 関西スーパー住ノ江店 (870m) / サンディ御崎店 (543m) / ライフ御崎店 (380m) / ローソン西住之江1丁目店 (362m) / 業務用食品スーパー住之江店 (838m) | ||||
| 内装代 | - | 償却 | - | 保険 | 損保要 |
| 更新料 | - | 水道料金等預かり金 | - | 特記事項 | - |
| 飲用水 | 公営 | ガス | 都市 | 排水 | 公共下水 |
| 給湯方式 | - | ||||
この物件のお問い合わせ番号 5107-2710039146-0001
類似物件一覧
店舗情報
お電話での物件問い合わせは無料通話で!(直営店のみ)
5107-2710039146-0001
- FC北花田店
- 御堂筋線 北花田駅(徒歩1分)
- Tel: 072-246-3232
- 店舗詳細情報
このお部屋にお問い合わせ
あわせて店舗への来店を希望のお客様は、上の希望店舗の来店予約フォームをご利用ください(直営店舗のみ)
Sorry,Japanese & English only. 日本語・英語のみ対応しております。ご了承ください。
- ※取扱形態は仲介です。 / お部屋の情報は随時更新です / 各種情報と現況に差異がある場合は、現況優先となります。 / 保証会社の審査があります。 / 契約一時金は、契約時に借主より貸主に支払われ返還されない金銭です。

この物件のかんたんお問合せフォーム
お電話でお問合せ


大阪府大阪市住之江区新北島2丁目