大阪府大阪市住吉区苅田9丁目 1LDK 31.05m2 物件詳細情報
| 沿線・駅 所在地 |
賃料 共益費(管理費) |
敷金 礼金 |
間取り 専有面積 |
種別 建築年月日 |
|
|---|---|---|---|---|---|
|
御堂筋線 あびこ駅(徒歩3分)
大阪府大阪市住吉区苅田9丁目 |
101,000円 10,500円 |
- - |
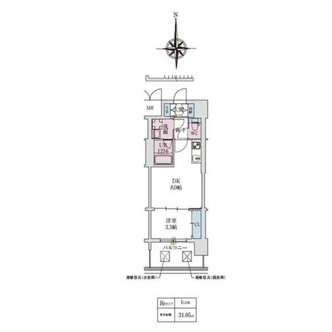
1LDK 31.05m2 |
マンション 2026年8月 |
|
この物件のお問い合わせ番号 5107-2710038773-0047
外観・間取り図
情報登録日:2026/04/02 情報更新日:2026/04/06 次回更新予定日:2026/04/13
設備
| 部屋設備 | TV付モニターホン / インターホン / 下駄箱 / ガスコンロ(コンロ(2口)) / エアコン / フローリング / バルコニー / シャワー / 浴室乾燥機 / 洗髪洗面化粧台 / 追焚き / 室内洗濯機置場 / バストイレ別 / クロゼット / 洗面所独立 / システムキッチン |
|---|---|
| 建物設備 | エレベータ / オートロック / 駐輪場 / 宅配ボックス / ペット可 / BSアンテナ / CSアンテナ / バイク置き場 / 巡回管理 / 敷地内ゴミ置き場 |
物件詳細
| 交通機関 | ・御堂筋線 あびこ駅(徒歩3分) ・阪和線 我孫子町駅(徒歩14分) ・阪和線 杉本町駅(徒歩20分)・御堂筋線 長居駅(徒歩20分) | ||||
|---|---|---|---|---|---|
| 構造 | RC造 | 方位 | 南 | 階数/総階数 | 4階/15階建て |
| 総戸数 | 84戸 | 駐車場 | 27,500円 | 入居日 | 2026年8月下旬 |
| 環境 | 業務スーパー我孫子店 (434m) / グルメシティ我孫子店 (553m) / サンディあびこ店 (624m) / デイリーカナートイズミヤ (801m) / 阪急オアシスあびこ店 (711m) | ||||
| 内装代 | - | 償却 | - | 保険 | 損保要 |
| 更新料 | - | 水道料金等預かり金 | - | 特記事項 | - |
| 飲用水 | 公営 | ガス | 都市 | 排水 | 公共下水 |
| 給湯方式 | - | ||||
この物件のお問い合わせ番号 5107-2710038773-0047
類似物件一覧
-
10.3万円
-
-
-
12.5万円
-
1.0ヶ月
1LDK
大阪府大阪市住吉区東粉浜2丁目 -
11.0万円
-
250,000円
1LDK+1納戸
大阪府大阪市住吉区長居1丁目 -
7.5万円
-
70,000円
1LDK
大阪府大阪市住吉区遠里小野5丁目 -
10.8万円
-
-
1LDK
大阪府大阪市住吉区苅田9丁目 -
7.6万円
-
110,000円
1LDK
大阪府大阪市住吉区遠里小野2丁目 -
7.5万円
-
110,000円
1LDK
大阪府大阪市住吉区遠里小野2丁目 -
10.4万円
-
1.0ヶ月
1LDK
大阪府大阪市住吉区千躰1丁目 -
7.5万円
-
1.5ヶ月
1LDK
大阪府大阪市住吉区山之内3丁目 -
11.7万円
-
-
1LDK
大阪府大阪市住吉区苅田9丁目 -
8.9万円
-
100,000円
1LDK
大阪府大阪市住吉区万代3丁目 -
10.2万円
-
-
1LDK
大阪府大阪市住吉区苅田9丁目
店舗情報
お電話での物件問い合わせは無料通話で!(直営店のみ)
5107-2710038773-0047
- FC北花田店
- 御堂筋線 北花田駅(徒歩1分)
- Tel: 072-246-3232
- 店舗詳細情報
このお部屋にお問い合わせ
あわせて店舗への来店を希望のお客様は、上の希望店舗の来店予約フォームをご利用ください(直営店舗のみ)
Sorry,Japanese & English only. 日本語・英語のみ対応しております。ご了承ください。
- ※取扱形態は仲介です。 / お部屋の情報は随時更新です / 各種情報と現況に差異がある場合は、現況優先となります。 / 保証会社の審査があります。 / 契約一時金は、契約時に借主より貸主に支払われ返還されない金銭です。

この物件のかんたんお問合せフォーム
お電話でお問合せ


大阪府大阪市住吉区苅田9丁目