大阪府堺市堺区出島海岸通1丁 1K 23.06m2 物件詳細情報
| 沿線・駅 所在地 |
賃料 共益費(管理費) |
敷金 礼金 |
間取り 専有面積 |
種別 建築年月日 |
|
|---|---|---|---|---|---|
|
南海電鉄南海本線 湊駅(徒歩2分)
大阪府堺市堺区出島海岸通1丁 |
61,000円 10,000円 |
- - |
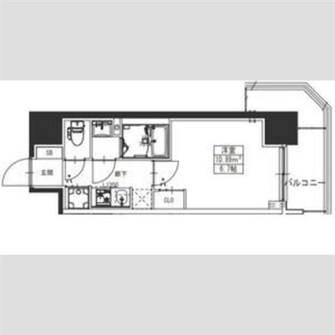
1K 23.06m2 |
マンション 2025年9月 |
|
この物件のお問い合わせ番号 5107-2710038088-0040
外観・間取り図
情報登録日:2026/02/05 情報更新日:2026/02/18 次回更新予定日:2026/02/25
設備
| 部屋設備 | TV付モニターホン / インターホン / 下駄箱 / ガスコンロ(コンロ(2口)) / エアコン / フローリング / バルコニー / ウォームレット / シャワー / 浴室乾燥機 / 洗髪洗面化粧台 / 室内洗濯機置場 / バストイレ別 / 角部屋 / クロゼット / 洗面所独立 |
|---|---|
| 建物設備 | エレベータ / オートロック / 駐輪場 / 宅配ボックス / ペット可 / BSアンテナ / CSアンテナ / バイク置き場 / 巡回管理 |
物件詳細
| 交通機関 | ・南海電鉄南海本線 湊駅(徒歩2分) ・阪堺電気軌道阪堺線 御陵前駅(徒歩11分) ・阪堺電気軌道阪堺線 東湊駅(徒歩13分)・南海電鉄南海本線 石津川駅(徒歩20分) | ||||
|---|---|---|---|---|---|
| 構造 | RC造 | 方位 | 南東 | 階数/総階数 | 13階/14階建て |
| 総戸数 | 104戸 | 駐車場 | 14,300円 | 入居日 | 相談 |
| 環境 | ローソン堺出島浜通店 (315m) / スーパーマーケットKINSHO東湊店 (1,100m) / セブンイレブン堺大浜南町2丁店 (365m) / ファミリーマート堺出島海岸通店 (193m) / 日之出屋御陵前店 (699m) | ||||
| 内装代 | - | 償却 | - | 保険 | 損保要 |
| 更新料 | 1.0ヶ月 | 水道料金等預かり金 | - | 特記事項 | - |
| 飲用水 | 公営 | ガス | 都市 | 排水 | 公共下水 |
| 給湯方式 | - | ||||
この物件のお問い合わせ番号 5107-2710038088-0040
類似物件一覧
-
5.0万円
-
-
-
5.8万円
-
90,000円
1K
大阪府堺市堺区今池町1丁 -
5.4万円
-
1.0ヶ月
1K
大阪府堺市堺区文珠橋通 -
6.8万円
-
-
1DK
大阪府堺市堺区綾之町東1丁 -
6.7万円
-
-
1DK
大阪府堺市堺区綾之町東1丁 -
4.8万円
-
1.0ヶ月
1K
大阪府堺市堺区東雲西町1丁 -
6.2万円
-
-
1K
大阪府堺市堺区神明町西1丁 -
6.6万円
-
-
1DK
大阪府堺市堺区綾之町東1丁 -
6.0万円
-
-
1K
大阪府堺市堺区出島海岸通4丁 -
6.3万円
1.0ヶ月
1.0ヶ月
1K
大阪府堺市堺区香ヶ丘町2丁 -
6.4万円
-
-
1R
大阪府堺市堺区寺地町東3丁 -
5.0万円
-
2.0ヶ月
1K
大阪府堺市堺区東雲西町4丁
店舗情報
お電話での物件問い合わせは無料通話で!(直営店のみ)
5107-2710038088-0040
- FCなかもず店
- 御堂筋線 なかもず駅(徒歩2分)
- Tel: 072-256-7232
- 店舗詳細情報
このお部屋にお問い合わせ
あわせて店舗への来店を希望のお客様は、上の希望店舗の来店予約フォームをご利用ください(直営店舗のみ)
Sorry,Japanese & English only. 日本語・英語のみ対応しております。ご了承ください。
- ※取扱形態は仲介です。 / お部屋の情報は随時更新です / 各種情報と現況に差異がある場合は、現況優先となります。 / 保証会社の審査があります。 / 契約一時金は、契約時に借主より貸主に支払われ返還されない金銭です。

この物件のかんたんお問合せフォーム
お電話でお問合せ


大阪府堺市堺区出島海岸通1丁