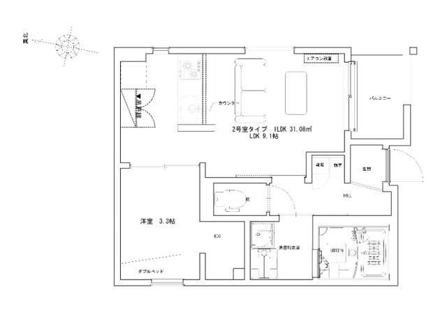
大阪府堺市堺区三宝町3丁 1LDK 31.08m2 物件詳細情報
このお部屋は募集を終了しました
ただいまこのお部屋は入居募集を終了しており、募集時の情報となっております。お部屋探しの参考としてご利用ください。募集が再度開始しましたら、こちらのページで詳細情報を掲載の上募集開始致します。情報掲載日:2025/02/07
| 沿線・駅 所在地 |
間取り 専有面積 |
種別 建築年月日 |
|
|---|---|---|---|
|
南海電鉄南海本線 七道駅(徒歩4分)
大阪府堺市堺区三宝町3丁 |
1LDK 31.08m2 |
アパート 2025年4月 |
|
この物件のお問い合わせ番号 5107-2710034969-0004
設備
| 部屋設備 | TV付モニターホン / インターホン / 下駄箱 / ガスコンロ(コンロ(2口)) / エアコン / フローリング / ウォークインクロゼット / 照明器具 / バルコニー / ウォームレット / シャワー / 浴室乾燥機 / 洗髪洗面化粧台 / 追焚き / 室内洗濯機置場 / バストイレ別 / 角部屋 / 洗面所独立 / カウンターキッチン / システムキッチン |
|---|---|
| 建物設備 | オートロック / 駐輪場 / 宅配ボックス / バイク置き場 / 巡回管理 |
物件詳細
| 交通機関 | ・南海電鉄南海本線 七道駅(徒歩4分) ・阪堺電気軌道阪堺線 綾ノ町駅(徒歩10分) ・南海電鉄高野線 浅香山駅(徒歩17分)・南海電鉄南海本線 堺駅(徒歩20分) | ||||
|---|---|---|---|---|---|
| 構造 | 木造 | 総階数 | 3階建て | ||
| 総戸数 | 6戸 | 入居日 | 入居不可(募集終了) | ||
| 飲用水 | 公営 | ガス | 都市 | 排水 | 公共下水 |
| 給湯方式 | - | ||||
この物件のお問い合わせ番号 5107-2710034969-0004
類似物件一覧
-
7.7万円
-
1.0ヶ月
-
7.6万円
-
120,000円
1LDK
大阪府堺市堺区大浜中町2丁 -
5.9万円
-
1.0ヶ月
1DK
大阪府堺市堺区宿院町西3丁 -
6.7万円
-
90,000円
1LDK
大阪府堺市堺区旭ヶ丘中町2丁 -
6.8万円
-
-
1LDK
大阪府堺市堺区出島浜通 -
7.3万円
-
-
1DK
大阪府堺市堺区大町東2丁 -
6.9万円
-
1.0ヶ月
1LDK
大阪府堺市堺区北向陽町1丁 -
6.7万円
-
-
1DK
大阪府堺市堺区綾之町東1丁 -
6.8万円
-
-
1DK
大阪府堺市堺区綾之町東1丁 -
6.0万円
-
2.0ヶ月
1LDK
大阪府堺市堺区寺地町東1丁 -
5.4万円
60,000円
-
1LDK
大阪府堺市堺区東湊町4丁 -
5.8万円
-
-
1DK
大阪府堺市堺区中三国ヶ丘町1丁
店舗情報
お電話での物件問い合わせは無料通話で!(直営店のみ)
5107-2710034969-0004
- FCなかもず店
- 御堂筋線 なかもず駅(徒歩2分)
- Tel: 072-256-7232
- 店舗詳細情報
このお部屋に似ている物件を問い合わせる
あわせて店舗への来店を希望のお客様は、上の希望店舗の来店予約フォームをご利用ください(直営店舗のみ)
Sorry,Japanese & English only. 日本語・英語のみ対応しております。ご了承ください。
- ※各種情報と現況に差異がある場合は、現況優先となります。

似た物件を問い合わせる
お電話でお問合せ
間取り図

大阪府堺市堺区住吉橋町1丁