大阪府堺市西区鳳中町9丁 1K 30.20m2 物件詳細情報
| 沿線・駅 所在地 |
賃料 共益費(管理費) |
敷金 礼金 |
間取り 専有面積 |
種別 建築年月日 |
|
|---|---|---|---|---|---|
|
阪和線 鳳駅(徒歩8分)
大阪府堺市西区鳳中町9丁 |
60,000円 4,700円 |
- 60,000円 |
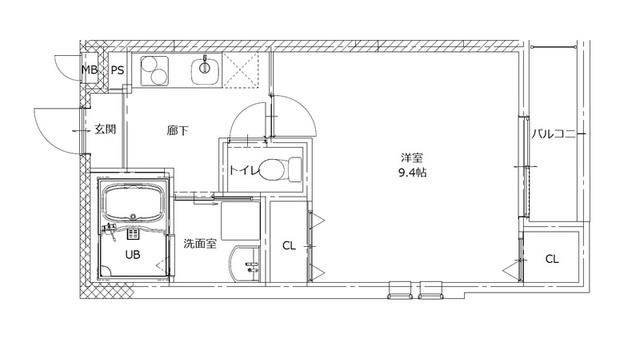
1K 30.20m2 |
アパート 2024年3月 |
|
この物件のお問い合わせ番号 5107-2710031860-0004
外観・間取り図
情報登録日:2026/03/27 情報更新日:2026/03/29 次回更新予定日:2026/04/05
設備
| 部屋設備 | TV付モニターホン / インターホン / IHヒーター / エアコン / 照明器具 / バルコニー / ウォームレット / シャワー / 浴室乾燥機 / 洗髪洗面化粧台 / 室内洗濯機置場 / バストイレ別 / コンロ(コンロ(2口)) / 角部屋 / クロゼット / 洗面所独立 / システムキッチン |
|---|---|
| 建物設備 | オートロック / 駐輪場 / BSアンテナ / CSアンテナ / CATV / 巡回管理 / 敷地内ゴミ置き場 |
物件詳細
| 交通機関 | ・阪和線 鳳駅(徒歩8分) ・阪和線 東羽衣駅(徒歩15分) ・南海電鉄南海本線 羽衣駅(徒歩17分)・南海電鉄高師浜支線 羽衣駅(徒歩17分) | ||||
|---|---|---|---|---|---|
| 構造 | 木造 | 方位 | 東 | 階数/総階数 | 2階/3階建て |
| 総戸数 | - | 駐車場 | 6,600円 | 入居日 | 2026年5月中旬 |
| 環境 | ローソン堺鳳西町店 (937m) / まるしん浜寺店 (530m) / セブンイレブン堺鳳中町8丁店 (327m) / セブンイレブン鳳西町2丁 (955m) / ローソン堺鳳中町七丁店 (657m) | ||||
| 内装代 | - | 償却 | - | 保険 | 損保要 |
| 更新料 | - | 水道料金等預かり金 | - | 特記事項 | - |
| 飲用水 | 公営 | ガス | 都市 | 排水 | 公共下水 |
| 給湯方式 | - | ||||
この物件のお問い合わせ番号 5107-2710031860-0004
類似物件一覧
-
5.7万円
-
100,000円
-
5.7万円
-
-
1R
大阪府堺市西区鳳東町3丁 -
6.3万円
-
-
1K
大阪府堺市西区浜寺石津町西4丁 -
5.3万円
-
-
1K
大阪府堺市西区鳳北町8丁 -
5.1万円
-
-
1K
大阪府堺市西区浜寺諏訪森町西3丁 -
5.8万円
-
-
1K
大阪府堺市西区浜寺石津町西4丁 -
5.7万円
-
-
1K
大阪府堺市西区浜寺石津町中4丁 -
4.9万円
-
-
1K
大阪府堺市西区津久野町3丁 -
4.9万円
-
-
1K
大阪府堺市西区上 -
6.2万円
-
70,000円
1K
大阪府堺市西区鳳中町1丁 -
4.3万円
-
-
1R
大阪府堺市西区津久野町2丁 -
6.4万円
-
-
1K
大阪府堺市西区浜寺石津町西1丁
店舗情報
お電話での物件問い合わせは無料通話で!(直営店のみ)
5107-2710031860-0004
- 三重法人部
- 059-356-8041
- 三重県四日市市鵜の森1丁目1-19太平洋鵜の森ビル5階
このお部屋にお問い合わせ
あわせて店舗への来店を希望のお客様は、上の希望店舗の来店予約フォームをご利用ください(直営店舗のみ)
Sorry,Japanese & English only. 日本語・英語のみ対応しております。ご了承ください。
- ※取扱形態は仲介です。 / お部屋の情報は随時更新です / 各種情報と現況に差異がある場合は、現況優先となります。 / 保証会社の審査があります。 / 契約一時金は、契約時に借主より貸主に支払われ返還されない金銭です。

この物件のかんたんお問合せフォーム
お電話でお問合せ(法人用)


大阪府堺市西区浜寺南町1丁