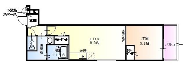
大阪府大阪市東住吉区北田辺2丁目 1LDK 35.80m2 物件詳細情報
| 沿線・駅 所在地 |
賃料 共益費(管理費) |
敷金 礼金 |
間取り 専有面積 |
種別 建築年月日 |
|
|---|---|---|---|---|---|
|
阪和線 美章園駅(徒歩6分)
大阪府大阪市東住吉区北田辺2丁目 |
66,500円 4,600円 |
- 70,000円 |
1LDK 35.80m2 |
アパート 2017年4月 |
|
この物件のお問い合わせ番号 5107-2710031432-0006
外観・間取り図
情報登録日:2025/12/08 情報更新日:2025/12/16 次回更新予定日:2025/12/23
設備
| 部屋設備 | TV付モニターホン / インターホン / IHヒーター / エアコン / フローリング / 照明器具 / バルコニー / ウォームレット / シャワー / 浴室乾燥機 / 洗髪洗面化粧台 / 室内洗濯機置場 / バストイレ別 / コンロ(コンロ(2口)) / 角部屋 / 2人入居 / クロゼット2ヶ所 / クロゼット / 全居室収納 / 洗面所独立 |
|---|---|
| 建物設備 | オートロック / 駐輪場 / BSアンテナ / CATV / 巡回管理 / 敷地内ゴミ置き場 |
物件詳細
| 交通機関 | ・阪和線 美章園駅(徒歩6分) ・近鉄南大阪線 北田辺駅(徒歩6分) ・谷町線 文の里駅(徒歩12分)・御堂筋線 昭和町駅(徒歩16分) | ||||
|---|---|---|---|---|---|
| 構造 | 木造 | 方位 | 東 | 階数/総階数 | 2階/3階建て |
| 総戸数 | 9戸 | 駐車場 | - | 入居日 | 2026年1月下旬 |
| 環境 | ファミリーマート桑津五丁目店 (165m) / セブンイレブン大阪桑津5丁目店 (353m) / デイリーカナートイズミヤ桑津店 (814m) / デイリーヤマザキ近鉄北田辺駅前店 (437m) / 阪急オアシスくまた店 (926m) | ||||
| 内装代 | - | 償却 | - | 保険 | 損保要 |
| 更新料 | - | 水道料金等預かり金 | - | 特記事項 | - |
| 飲用水 | 公営 | ガス | 都市 | 排水 | 公共下水 |
| 給湯方式 | - | ||||
この物件のお問い合わせ番号 5107-2710031432-0006
類似物件一覧
-
6.7万円
-
1.0ヶ月
-
7.1万円
-
70,000円
1LDK
大阪府大阪市東住吉区鷹合1丁目 -
5.9万円
-
1.0ヶ月
1LDK
大阪府大阪市東住吉区照ケ丘矢田3丁目 -
7.2万円
1.0ヶ月
2.0ヶ月
1LDK
大阪府大阪市東住吉区公園南矢田1丁目 -
5.9万円
-
1.0ヶ月
1LDK
大阪府大阪市東住吉区照ケ丘矢田3丁目 -
5.8万円
100,000円
-
1DK
大阪府大阪市東住吉区東田辺2丁目 -
6.8万円
-
1.0ヶ月
1LDK
大阪府大阪市東住吉区公園南矢田4丁目 -
6.2万円
-
60,000円
1LDK
大阪府大阪市東住吉区東田辺3丁目 -
6.5万円
-
90,000円
1LDK
大阪府大阪市東住吉区住道矢田8丁目 -
5.7万円
-
100,000円
1DK
大阪府大阪市東住吉区今川4丁目 -
6.6万円
-
-
1LDK
大阪府大阪市東住吉区湯里5丁目 -
7.9万円
-
120,000円
1LDK
大阪府大阪市東住吉区桑津4丁目
店舗情報
お電話での物件問い合わせは無料通話で!(直営店のみ)
5107-2710031432-0006
- FC北花田店
- 御堂筋線 北花田駅(徒歩1分)
- Tel: 072-246-3232
- 店舗詳細情報
このお部屋にお問い合わせ
あわせて店舗への来店を希望のお客様は、上の希望店舗の来店予約フォームをご利用ください(直営店舗のみ)
Sorry,Japanese & English only. 日本語・英語のみ対応しております。ご了承ください。
- ※取扱形態は仲介です。 / お部屋の情報は随時更新です / 各種情報と現況に差異がある場合は、現況優先となります。 / 保証会社の審査があります。 / 契約一時金は、契約時に借主より貸主に支払われ返還されない金銭です。

この物件のかんたんお問合せフォーム
お電話でお問合せ


大阪府大阪市東住吉区鷹合2丁目