大阪府堺市北区百舌鳥梅町1丁 1LDK 40.34m2 物件詳細情報
| 沿線・駅 所在地 |
賃料 共益費(管理費) |
敷金 礼金 |
間取り 専有面積 |
種別 建築年月日 |
|
|---|---|---|---|---|---|
|
南海電鉄高野線 中百舌鳥駅(徒歩10分)
大阪府堺市北区百舌鳥梅町1丁 |
78,000円 4,700円 |
- 120,000円 |
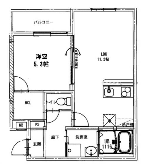
1LDK 40.34m2 |
アパート 2022年5月 |
|
この物件のお問い合わせ番号 5107-2710024166-0014
外観・間取り図
情報登録日:2026/01/16 情報更新日:2026/01/24 次回更新予定日:2026/01/31
設備
| 部屋設備 | フローリング / 照明器具 / バルコニー / ウォームレット / シャワー / 浴室乾燥機 / 洗髪洗面化粧台 / バストイレ別 / エアコン / IHヒーター / インターホン / TV付モニターホン / コンロ(コンロ(2口)) / 角部屋 / 2人入居 / クロゼット2ヶ所 / クロゼット / 洗面所独立 / カウンターキッチン / システムキッチン |
|---|---|
| 建物設備 | オートロック / 駐輪場 / 宅配ボックス / BSアンテナ / CSアンテナ / CATV / 巡回管理 / 敷地内ゴミ置き場 |
物件詳細
| 交通機関 | ・南海電鉄高野線 中百舌鳥駅(徒歩10分) ・御堂筋線 なかもず駅(徒歩10分) ・南海電鉄高野線 百舌鳥八幡駅(徒歩10分)・阪和線 百舌鳥駅(徒歩14分) | ||||
|---|---|---|---|---|---|
| 構造 | 木造 | 方位 | 北西 | 階数/総階数 | 2階/3階建て |
| 総戸数 | 15戸 | 駐車場 | 9,900円 | 入居日 | 2026年3月中旬 |
| 環境 | マクドナルド百舌鳥店 (909m) / ウエルシア堺百舌鳥梅町店 (384m) / セブンイレブン堺百舌鳥梅町1丁店 (449m) / セブンイレブン店 (697m) / 業務スーパー中百舌鳥店 (556m) | ||||
| 内装代 | - | 償却 | - | 保険 | 損保要 |
| 更新料 | - | 水道料金等預かり金 | - | 特記事項 | - |
| 飲用水 | 公営 | ガス | 都市 | 排水 | 公共下水 |
| 給湯方式 | - | ||||
この物件のお問い合わせ番号 5107-2710024166-0014
類似物件一覧
-
8.2万円
-
1.0ヶ月
-
6.3万円
-
-
1LDK
大阪府堺市北区東浅香山町1丁 -
5.8万円
-
-
1LDK
大阪府堺市北区百舌鳥陵南町1丁 -
8.2万円
-
1.0ヶ月
1LDK
大阪府堺市北区蔵前町3丁 -
9.9万円
-
1.0ヶ月
1LDK
大阪府堺市北区北花田町4丁 -
7.1万円
-
1.0ヶ月
1DK
大阪府堺市北区東雲東町1丁 -
6.9万円
-
1.0ヶ月
1DK
大阪府堺市北区長曽根町 -
7.2万円
-
1.0ヶ月
1DK
大阪府堺市北区東雲東町1丁 -
6.9万円
-
90,000円
1DK
大阪府堺市北区長曽根町 -
8.2万円
-
1.0ヶ月
1LDK
大阪府堺市北区蔵前町3丁 -
7.7万円
-
150,000円
1LDK
大阪府堺市北区東雲東町2丁 -
7.9万円
-
120,000円
1LDK
大阪府堺市北区百舌鳥本町3丁
店舗情報
お電話での物件問い合わせは無料通話で!(直営店のみ)
5107-2710024166-0014
- FCなかもず店
- 御堂筋線 なかもず駅(徒歩2分)
- Tel: 072-256-7232
- 店舗詳細情報
このお部屋にお問い合わせ
あわせて店舗への来店を希望のお客様は、上の希望店舗の来店予約フォームをご利用ください(直営店舗のみ)
Sorry,Japanese & English only. 日本語・英語のみ対応しております。ご了承ください。
- ※取扱形態は仲介です。 / お部屋の情報は随時更新です / 各種情報と現況に差異がある場合は、現況優先となります。 / 保証会社の審査があります。 / 契約一時金は、契約時に借主より貸主に支払われ返還されない金銭です。

この物件のかんたんお問合せフォーム
お電話でお問合せ


大阪府堺市北区蔵前町3丁