大阪府堺市堺区向陵中町3丁 3DK 56.60m2 物件詳細情報
| 沿線・駅 所在地 |
賃料 共益費(管理費) |
敷金 礼金 |
間取り 専有面積 |
種別 建築年月日 |
|
|---|---|---|---|---|---|
|
阪和線 三国ヶ丘駅(徒歩8分)
大阪府堺市堺区向陵中町3丁 |
78,000円 10,000円 |
- 150,000円 |
3DK 56.60m2 |
マンション 1997年9月 |
|
この物件のお問い合わせ番号 5107-2710006261-0017
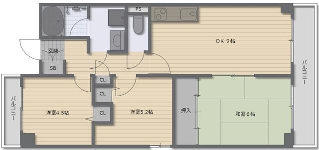
外観・間取り図
情報登録日:2026/03/30 情報更新日:2026/04/01 次回更新予定日:2026/04/08
設備
| 部屋設備 | TV付モニターホン / インターホン / ガスコンロ(コンロ(2口)) / フローリング / ウォークインクロゼット / バルコニー / シャワー / 洗髪洗面化粧台 / 室内洗濯機置場 / バストイレ別 / 2人入居 / クロゼット / 洗面所独立 |
|---|---|
| 建物設備 | エレベータ / オートロック / 駐輪場 / 宅配ボックス / ネット環境(光ファイバ対応) / CATV / バイク置き場 / 巡回管理 / 敷地内ゴミ置き場 |
物件詳細
| 交通機関 | ・阪和線 三国ヶ丘駅(徒歩8分) ・南海電鉄高野線 三国ヶ丘駅(徒歩8分) ・南海電鉄高野線 中百舌鳥駅(徒歩24分) | ||||
|---|---|---|---|---|---|
| 構造 | RC造 | 方位 | 西 | 階数/総階数 | 2階/4階建て |
| 総戸数 | 24戸 | 駐車場 | 16,500円 | 入居日 | 2026年4月下旬 |
| 環境 | ファミリーマート (850m) / サンプラザ (536m) / セブンイレブン (344m) / トイザらス堺店 (816m) / ライフォート (681m) | ||||
| 内装代 | - | 償却 | - | 保険 | 損保要 |
| 更新料 | - | 水道料金等預かり金 | - | 特記事項 | - |
| 飲用水 | 公営 | ガス | 都市 | 排水 | 公共下水 |
| 給湯方式 | - | ||||
この物件のお問い合わせ番号 5107-2710006261-0017
類似物件一覧
-
9.2万円
1.0ヶ月
2.0ヶ月
-
8.0万円
-
100,000円
3DK
大阪府堺市堺区松屋町2丁 -
7.8万円
-
1.0ヶ月
3DK
大阪府堺市堺区緑ヶ丘中町2丁 -
5.8万円
-
-
3DK
大阪府堺市堺区香ヶ丘町4丁 -
9.4万円
-
-
3LDK
大阪府堺市堺区向陵中町1丁 -
9.4万円
-
150,000円
3LDK
大阪府堺市堺区住吉橋町1丁 -
9.6万円
-
150,000円
3LDK
大阪府堺市堺区南清水町3丁 -
7.9万円
-
1.5ヶ月
3DK
大阪府堺市堺区緑町2丁 -
5.8万円
-
-
3DK
大阪府堺市堺区香ヶ丘町4丁 -
5.8万円
-
-
3DK
大阪府堺市堺区香ヶ丘町4丁 -
9.0万円
-
2.0ヶ月
3LDK
大阪府堺市堺区緑ヶ丘北町4丁 -
7.8万円
-
1.0ヶ月
3DK
大阪府堺市堺区緑ヶ丘中町2丁
店舗情報
お電話での物件問い合わせは無料通話で!(直営店のみ)
5107-2710006261-0017
- FCなかもず店
- 御堂筋線 なかもず駅(徒歩2分)
- Tel: 072-256-7232
- 店舗詳細情報
このお部屋にお問い合わせ
あわせて店舗への来店を希望のお客様は、上の希望店舗の来店予約フォームをご利用ください(直営店舗のみ)
Sorry,Japanese & English only. 日本語・英語のみ対応しております。ご了承ください。
- ※取扱形態は仲介です。 / お部屋の情報は随時更新です / 各種情報と現況に差異がある場合は、現況優先となります。 / 保証会社の審査があります。 / 契約一時金は、契約時に借主より貸主に支払われ返還されない金銭です。

この物件のかんたんお問合せフォーム
お電話でお問合せ


大阪府堺市堺区南半町東2丁