大阪府堺市北区蔵前町3丁 2LDK 55.00m2 物件詳細情報
| 沿線・駅 所在地 |
賃料 共益費(管理費) |
敷金 礼金 |
間取り 専有面積 |
種別 建築年月日 |
|
|---|---|---|---|---|---|
|
御堂筋線 新金岡駅(徒歩12分)
大阪府堺市北区蔵前町3丁 |
87,000円 5,000円 |
- 200,000円 |
2LDK 55.00m2 |
マンション 1993年3月 |
|
この物件のお問い合わせ番号 5107-2710004157-0009
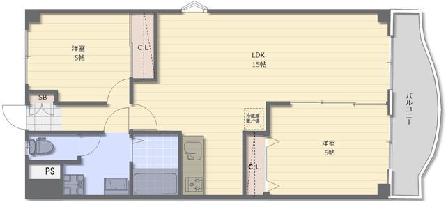
外観・間取り図
情報登録日:2026/03/18 情報更新日:2026/03/21 次回更新予定日:2026/03/28
設備
| 部屋設備 | TV付モニターホン / インターホン / 下駄箱 / ガスコンロ(コンロ(2口)) / バルコニー / ウォームレット / シャワー / 洗髪洗面化粧台 / 室内洗濯機置場 / バストイレ別 / 角部屋 / クロゼット2ヶ所 / クロゼット / 洗面所独立 |
|---|---|
| 建物設備 | 駐輪場 / 宅配ボックス / ネット環境(光ファイバ対応) / バイク置き場 / 巡回管理 / 敷地内ゴミ置き場 |
物件詳細
| 交通機関 | ・御堂筋線 新金岡駅(徒歩12分) ・御堂筋線 北花田駅(徒歩12分) ・阪和線 堺市駅(徒歩25分)・近鉄南大阪線 河内天美駅(徒歩32分) | ||||
|---|---|---|---|---|---|
| 構造 | RC造 | 方位 | 南 | 階数/総階数 | 2階/3階建て |
| 総戸数 | 12戸 | 駐車場 | 13,200円 | 入居日 | 2026年5月上旬 |
| 環境 | ローソン (80m) / ウエルシア堺新金岡店 (165m) / サンディ金岡蔵前店 (667m) / レインボー金岡 (820m) / 特定医療法人仁悠会タマダ病院 (383m) | ||||
| 内装代 | - | 償却 | - | 保険 | 損保要 |
| 更新料 | - | 水道料金等預かり金 | - | 特記事項 | - |
| 飲用水 | 公営 | ガス | 都市 | 排水 | 公共下水 |
| 給湯方式 | - | ||||
この物件のお問い合わせ番号 5107-2710004157-0009
類似物件一覧
-
8.8万円
1.0ヶ月
2.0ヶ月
-
7.0万円
-
-
2LDK
大阪府堺市北区百舌鳥本町1丁 -
7.3万円
-
1.0ヶ月
2LDK
大阪府堺市北区北花田町3丁 -
7.0万円
-
100,000円
2LDK
大阪府堺市北区百舌鳥梅町3丁 -
6.2万円
-
1.0ヶ月
2LDK
大阪府堺市北区野遠町 -
7.3万円
20,000円
120,000円
2LDK
大阪府堺市北区百舌鳥梅町3丁 -
9.3万円
20,000円
200,000円
2LDK
大阪府堺市北区東上野芝町2丁 -
6.3万円
-
1.0ヶ月
2LDK
大阪府堺市北区百舌鳥赤畑町3丁 -
6.2万円
-
-
2LDK
大阪府堺市北区東上野芝町2丁 -
8.2万円
20,000円
1.5ヶ月
2LDK
大阪府堺市北区北花田町2丁 -
7.8万円
-
75,000円
2DK
大阪府堺市北区黒土町 -
11.0万円
1.0ヶ月
2.0ヶ月
2LDK
大阪府堺市北区金岡町
店舗情報
お電話での物件問い合わせは無料通話で!(直営店のみ)
5107-2710004157-0009
- FC北花田店
- 御堂筋線 北花田駅(徒歩1分)
- Tel: 072-246-3232
- 店舗詳細情報
このお部屋にお問い合わせ
あわせて店舗への来店を希望のお客様は、上の希望店舗の来店予約フォームをご利用ください(直営店舗のみ)
Sorry,Japanese & English only. 日本語・英語のみ対応しております。ご了承ください。
- ※取扱形態は仲介です。 / お部屋の情報は随時更新です / 各種情報と現況に差異がある場合は、現況優先となります。 / 保証会社の審査があります。 / 契約一時金は、契約時に借主より貸主に支払われ返還されない金銭です。

この物件のかんたんお問合せフォーム
お電話でお問合せ


大阪府堺市北区大豆塚町1丁